Neem contact op
Hoe kunnen wij je helpen?
23:02

Vijfhagen 341

4812XT Breda

Verkocht

Omschrijving

Dit moderne, energiezuinige appartement is volledig instapklaar! Geen verbouwingen nodig; je kunt direct genieten van jouw nieuwe stulpje in het levendige Breda. Dit tweekamer hoekappartement gelegen op de 1e verdieping van het complex en biedt alle comfort die je wenst. De lichte woonkamer, de open keuken met moderne voorzieningen, de badkamer met douche en het ruime balkon maken dit appartement tot de ideale plek om te wonen.

Wat dit appartement extra bijzonder maakt is het feit dat het energiezuinig is. Bovendien hoef je je nooit zorgen te maken over parkeren, want dit appartement beschikt over een eigen parkeerplaats in de parkeerkelder.

Kortom, een ideale woonplek in het bourgondische en gezellige Breda!

Wil je dit geweldige appartement bezichtigen? Maak dan snel een afspraak, zodat onze makelaar je een rondleiding kan geven in misschien wel jouw toekomstige appartement!

LIGGING
Het prestigieuze complex EASYSTREET is opgeleverd in 2012. Het appartementencomplex is een uniek gebouw met moderne appartementen. De appartementen staan in het teken van energiezuinig wonen. Het complex voorziet de appartementen van warmte en warm water door de verbranding van houtsnippers in een houtpallet installatie. Ook hierin is Easystreet een voorloper in energiezuinig wonen. De maandlasten zijn dan ook erg laag!
In de plint van het complex zijn diverse commerciële ruimtes gelegen. Ons kantoor is hier gehuisvest op nr. 157.

Alle openbare voorzieningen bevinden zich in de directe omgeving van de woning, zoals supermarkten, openbaar vervoer (bushalte voor het complex), huisartsenpraktijk, apotheek, sportfaciliteiten en op zeer korte afstand (5 fietsminuten) van het gezellige centrum van Breda.

BEGANE GROND
Centrale hal met een bellentableau en intercominstallatie, de brievenbussen, toegang tot de liften en het trappenhuis.

FIETSENBERGING
Een afgesloten gezamenlijke fietsenberging deze is te bereiken via de binnenplaats.

PARKEERPLAATS
In de parkeerkelder tref je een eigen parkeerplaats aan.
Daarnaast zijn er rondom het complex voldoende gratis parkeermogelijkheden en zijn er voldoende laadpalen voor het laden van een elektrische auto aanwezig.

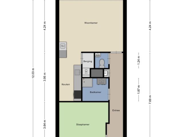
HAL/ENTREE
De ruime hal met intercom-videofoon, biedt toegang tot de slaapkamer, badkamer, meterkast, toilet en de woonkamer.
De wanden zijn voorzien van stucwerk en de vloer is afgewerkt met laminaat welke doorloopt in het gehele appartement met uitzondering van de badkamer en toilet.

WOONKAMER
Vanuit de hal leid een moderne stalen deur je naar de lichte woonkamer. Dankzij de grote glazen pui geniet de ruimte van volop daglicht en heeft u direct toegang tot het balkon.

KEUKEN
De open keuken is voorzien van onder- en bovenkasten en een vrijstaand keukenmeubel. De keuken is uitgerust met de volgende inbouwapparatuur; 4-pits Bora inductiekookplaat met geïntegreerde afzuiging, combi-oven, koelkast en vaatwasser.

TOILET
De toiletruimte is voorzien van een closet en een fonteintje, de vloer is afgewerkt met donkere vloertegels en de wanden zijn deels betegeld met witte wandtegels.

SLAAPKAMER
Vanuit de entree betreedt je de ruime en lichte slaapkamer. Deze slaapkamer is voorzien van een laminaatvloer en de wanden zijn voorzien van stucwerk.

BADKAMER
Vanuit de entree is tevens de badkamer te bereiken. Deze nette badkamer is voorzien van een ruime inloopdouche en een wastafel in een badkamermeubel. De badkamer is volledig betegeld.

VASTE KAST
Vanuit de keuken is er toegang tot de vaste kast. In deze kast is voldoende opbergruimte en daarnaast is er een wasmachine-/drogeraansluiting aanwezig.

BALKON
Vanuit de woonkamer is er toegang tot het ruime balkon dat is gelegen op het zonnige zuiden. Hier kun je echt ontspannen en genieten van de buitenlucht.

VVE
De bijdrage voor de vereniging van eigenaren bedraagt € 123,50 per maand. Hierin zijn onder andere inbegrepen: opstalverzekering, reservering voor groot en klein onderhoud, de schoonmaakkosten en de elektra van de algemene ruimten. Uiteraard zijn alle VVE stukken inzichtelijk en op te vragen via ons kantoor.

BIJZONDERHEDEN
- Instapklaar energiezuinig tweekamerappartement gelegen op een hoek
- Nette badkamer
- Moderne keuken met inbouwapparatuur
- Energielabel A+++
- Ruim balkon gelegen op het zuiden
- Eigen parkeerplaats in de parkeerkelder

VERKOOPVOORWAARDEN
MEETINSTRUCTIE NEN2580
De gebruikte meetinstructie volgt de NEN2580-norm. Deze methode biedt een uniforme manier om het gebruiksoppervlak te benaderen. Door variaties in interpretatie, afronding of meetbeperkingen kunnen er toch afwijkingen ontstaan. De feitelijke situatie in het huis is leidend. De verstrekte oppervlakte-informatie is indicatief en mag niet als exact worden beschouwd. “Wat je ziet is wat je koopt” blijft het uitgangspunt.

RECHTSGELDIGE KOOPOVEREENKOMST PAS NA ONDERTEKENING
Een mondeling akkoord tussen particuliere verkoper en koper geldt niet als juridisch bindend. De koop is pas definitief zodra beide partijen de koopakte ondertekenen. Dit volgt uit artikel 7:2 van het Burgerlijk Wetboek. Een bevestiging per e-mail of een ontvangen conceptakte geldt eveneens niet als rechtsgeldige overeenkomst.

WAARBORGSOM OF BANKGARANTIE
Omdat De Huizenbemiddelaar lid is van de Vastgoed Nederland, wordt de koopakte opgesteld volgens het model van NVM, Vastgoed Nederland, Consumentenbond en Vereniging Eigen Huis. Daarin is standaard opgenomen dat een waarborgsom of bankgarantie vereist is, ter hoogte van tien procent van de overeengekomen koopsom.

VERKOOPDOCUMENTATIE
Deze verkoopinformatie is zorgvuldig samengesteld. Toch zijn wij grotendeels afhankelijk van derden voor de inhoudelijke juistheid. Daarom aanvaarden zowel de verkoper als wij geen enkele aansprakelijkheid voor eventuele onjuistheden in de verstrekte gegevens.

Bedankt voor uw interesse in deze woning! We nodigen u graag uit om een kijkje te komen nemen. Tijdens de bezichtiging laten we u zien hoe het huis er momenteel uitziet, maar we denken ook graag met u mee over de mogelijkheden. Misschien ziet u het net even anders, en dat begrijpen we maar al te goed. We staan open voor uw ideeën en bespreken graag hoe u de ruimtes naar uw eigen smaak en wensen kunt aanpassen. Vaak zijn er verrassend eenvoudige manieren om een woning helemaal naar uw hand te zetten.
Een bouwtechnische keuring is nimmer een probleem.

Heeft u vragen of wilt u een afspraak maken? Neem dan gerust contact met ons op, telefonisch of via e-mail. We helpen u graag verder.

Kenmerken

Overdracht

Aangeboden sinds
12 september 2025
Status
Verkocht
Aanvaarding
In overleg

Bouw

Soort woning
Appartement
Soort appartement
Galerijflat
Bouwjaar
2012
Soort dak
Plat dak

Oppervlakten en inhoud

Oppervlakte wonen
62 m²
Oppervlakte gebouwgebonden buitenruimte
13 m²
Oppervlakte externe bergruimte
12 m²
Inhoud
204 m³

Indeling

Aantal kamers
2
Aantal slaapkamers
1
Aantal woonlagen
1 woonlaag
Gelegen op
1e woonlaag
Voorzieningen
Mechanische ventilatie, tv-kabel, lift en glasvezel kabel

Energie

Energielabel
A+++
Isolatie
Dakisolatie en dubbel glas
Verwarming
Blokverwarming
Warm water
Centrale voorziening

Vereniging van Eigenaren

Inschrijving KvK
Ja
Jaarlijkse vergadering
Ja
Periodieke bijdrage
Reservefonds aanwezig
Ja
Onderhoudsplan
Ja
Opstalverzekering
Ja

Media

Locatie

Meer informatie?