Neem contact op
Hoe kunnen wij je helpen?
23:01

Vijfhagen 31

4812XT Breda

Verkocht

Omschrijving

Wonen zonder klussen, maar direct genieten?
Dit moderne 2-kamerappartement op de 5e verdieping heeft alles; een lichte woonkamer, luxe keuken, fijne badkamer, ruime slaapkamer én een royaal balkon.
Helemaal instapklaar, helemaal van nu.
Bij het appartement hoort een eigen parkeerplaats in de parkeergarage en daarnaast een handige, afgesloten fietsenberging.

Zie jij jezelf hier al wonen? Plan dan snel een bezichtiging en laat je verrassen!

Het prestigieuze complex EASYSTREET is opgeleverd in 2012. Het appartementencomplex is een uniek gebouw met moderne appartementen. De woningen staan in het teken van energiezuinig wonen. Easystreet geeft inzicht in je energieverbruik d.m.v. van een “slimme meter” en het gebruik van gratis zonnepanelen (geven stroom voor gemeenschappelijke ruimtes, niet voor de appartementen zelf). Het complex voorziet de woningen van warmte en warm water door de verbranding van houtsnippers in een houtpallet installatie. Ook hierin is Easystreet een voorloper in energiezuinig wonen. De maandlasten zijn dan ook laag!
In de plint van het complex zijn commerciële ruimtes gelegen, ons eigen kantoor is hier op nr. 157 gehuisvest.
Achter het gebouw ligt een voetbalveldje en op het dak van de parkeergarage zijn loungeplekken gecreëerd.

Alle openbare voorzieningen bevinden zich in de directe omgeving van de woning, zoals supermarkten, openbaar vervoer (bushalte voor het complex), huisartsenpraktijk, apotheek, sportfaciliteiten en op zeer korte afstand (5 fietsminuten) van het gezellige centrum van Breda. Ook bent u binnen enkele minuten op uitvalswegen A58/A16/A27.

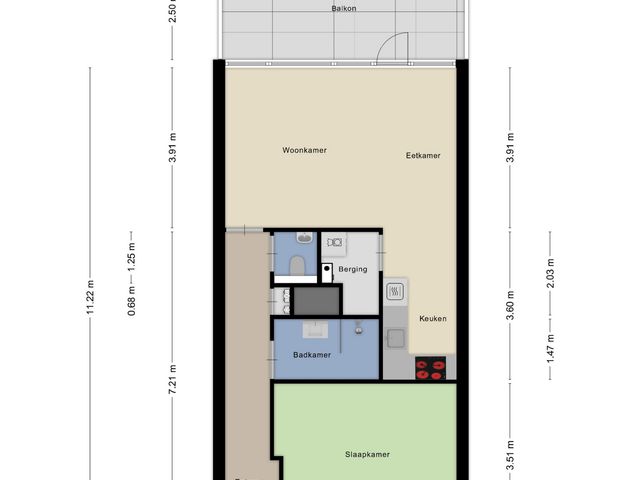
BEGANE GROND
Centrale hal met een bellentableau en intercominstallatie, de brievenbussen, toegang tot de liften en het trappenhuis.

FIETSENSBERGING
Een afgesloten gezamenlijke fietsenberging op de begane grond.

PARKEERPLAATS
Het appartement beschikt over een eigen parkeervak in de parkeergarage. Om het gebouw heen is voldoende gratis parkeergelegenheid voor een eventuele tweede auto of visite.

HAL/ENTREE
Bij binnenkomst kom je in de ruime hal, die fungeert als centraal vertrek en toegang biedt tot de slaapkamer, meterkast, het toilet en de woonkamer. De nette wandafwerking en de laminaatvloer zorgen direct voor een verzorgde uitstraling.

WOONKAMER
Zodra je de woonkamer binnenkomt, trekken de royale ramen meteen de aandacht. Ze laten veel daglicht binnen en creëren een aangename sfeer. Via de loopdeur stap je zo het ruime balkon op. De woonkamer is modern afgewerkt met een laminaatvloer en glad gestucte wanden.

KEUKEN
De open keuken beschikt over diverse onder- en bovenkasten en lades en is uitgerust met inbouwapparatuur zoals een 4-pits elektrische kookplaat, rvs-afzuigkap, oven, inbouwkoelkast en vaatwasser. Vanuit de keuken is de berging bereikbaar.

TOILET
Het toilet is deels betegeld en voorzien van een wandcloset en fonteintje.

SLAAPKAMER
De slaapkamer is royaal van opzet en licht door de grote raampartij. Strak stucwerk en een laminaatvloer maken de kamer verzorgd en uitnodigend.

BADKAMER
De badkamer is geheel betegeld en voorzien van een inloopdouche en een wastafel met badkamermeubel.

BERGING
Vanuit de keuken stap je zo de berging in, uitgerust met aansluitingen voor wasmachine en droger, de ventilatie-unit en volop ruimte om spullen netjes op te bergen.

BALKON
Het ruime balkon nodigt uit om een loungebank te plaatsen, zodat je hier heerlijk kunt loungen, zonnen of gezellig buiten zitten.

VVE
De bijdrage voor de vereniging van eigenaren bedraagt € 123,50 per maand. Hierin zijn onder andere inbegrepen: opstalverzekering, reservering voor groot en klein onderhoud, de schoonmaakkosten en de elektra van de algemene ruimten. Uiteraard zijn alle VVE stukken inzichtelijk en op te vragen via ons kantoor.

BIJZONDERHEDEN:
- Instapklaar 2 kamer appartement gelegen op de 5e verdieping
- Lichte woonkamer
- Ruime slaapkamer
- Keuken die is voorzien van inbouwapparatuur
- Nette badkamer voorzien van inloopdouche
- Royaal zonnig balkon
- Energielabel A
- Eigen parkeervak in parkeergarage
- VvE bijdrage bedraagt c.a. € 123,50 per maand

VERKOOPVOORWAARDEN
MEETINSTRUCTIE NEN2580
De gebruikte meetinstructie volgt de NEN2580-norm. Deze methode biedt een uniforme manier om het gebruiksoppervlak te benaderen. Door variaties in interpretatie, afronding of meetbeperkingen kunnen er toch afwijkingen ontstaan. De feitelijke situatie in het huis is leidend. De verstrekte oppervlakte-informatie is indicatief en mag niet als exact worden beschouwd. “Wat je ziet is wat je koopt” blijft het uitgangspunt.

RECHTSGELDIGE KOOPOVEREENKOMST PAS NA ONDERTEKENING
Een mondeling akkoord tussen particuliere verkoper en koper geldt niet als juridisch bindend. De koop is pas definitief zodra beide partijen de koopakte ondertekenen. Dit volgt uit artikel 7:2 van het Burgerlijk Wetboek. Een bevestiging per e-mail of een ontvangen conceptakte geldt eveneens niet als rechtsgeldige overeenkomst.

WAARBORGSOM OF BANKGARANTIE
Omdat De Huizenbemiddelaar lid is van de Vastgoed Nederland, wordt de koopakte opgesteld volgens het model van NVM, Vastgoed Nederland, Consumentenbond en Vereniging Eigen Huis. Daarin is standaard opgenomen dat een waarborgsom of bankgarantie vereist is, ter hoogte van tien procent van de overeengekomen koopsom.

VERKOOPDOCUMENTATIE
Deze verkoopinformatie is zorgvuldig samengesteld. Toch zijn wij grotendeels afhankelijk van derden voor de inhoudelijke juistheid. Daarom aanvaarden zowel de verkoper als wij geen enkele aansprakelijkheid voor eventuele onjuistheden in de verstrekte gegevens.

Bedankt voor uw interesse in deze woning! We nodigen u graag uit om een kijkje te komen nemen. Tijdens de bezichtiging laten we u zien hoe het huis er momenteel uitziet, maar we denken ook graag met u mee over de mogelijkheden. Misschien ziet u het net even anders, en dat begrijpen we maar al te goed. We staan open voor uw ideeën en bespreken graag hoe u de ruimtes naar uw eigen smaak en wensen kunt aanpassen. Vaak zijn er verrassend eenvoudige manieren om een woning helemaal naar uw hand te zetten.
Een bouwtechnische keuring is nimmer een probleem.

Heeft u vragen of wilt u een afspraak maken? Neem dan gerust contact met ons op, telefonisch of via e-mail. We helpen u graag verder.

Kenmerken

Overdracht

Aangeboden sinds
9 september 2025
Status
Verkocht
Aanvaarding
In overleg

Bouw

Soort woning
Appartement
Soort appartement
Galerijflat
Bouwjaar
2012

Oppervlakten en inhoud

Oppervlakte wonen
62 m²
Oppervlakte gebouwgebonden buitenruimte
14 m²
Inhoud
205 m³

Indeling

Aantal kamers
2
Aantal slaapkamers
1
Aantal woonlagen
1 woonlaag
Gelegen op
4e woonlaag
Voorzieningen
Mechanische ventilatie

Energie

Energielabel
A
Isolatie
Dakisolatie, vloerisolatie, volledig geïsoleerd en dubbel glas
Verwarming
Blokverwarming
Warm water
Centrale voorziening

Garage

Soort garage
Parkeerplaats

Vereniging van Eigenaren

Inschrijving KvK
Ja
Jaarlijkse vergadering
Ja
Periodieke bijdrage
Reservefonds aanwezig
Ja
Onderhoudsplan
Ja
Opstalverzekering
Ja

Media

Locatie

Meer informatie?