Neem contact op
Hoe kunnen wij je helpen?
22:12

Van Lanschotstraat 19

4885AA Achtmaal

Verkocht

Omschrijving

Wat een prachtige, gerenoveerde vrijstaande woning! Deze uitstekend onderhouden en uitgebouwde woning aan de Van Lanschotstraat in Achtmaal is afgewerkt met hoogwaardige materialen. De woning beschikt over een ruime, sfeervolle woonkamer, een open keuken en een moderne badkamer op de begane grond. Op de eerste verdieping bevinden zich vier comfortabele slaapkamers.

De fraai aangelegde achtertuin biedt volop privacy en een schitterend uitzicht over de achterliggende landerijen. Daarnaast is de tuin voorzien van een sfeervolle overkapping, wat het tot een ideale plek maakt om het hele jaar door te ontspannen. Tot slot beschikt de woning over een ruime garage, perfect voor extra opslag of hobbyruimte.

Kortom: een prachtige vrijstaande woning. Hier ontbreekt het zowel binnen als buiten niet aan ruimte en wooncomfort!

Als deze woning uw interesse heeft gewekt, maken wij graag een afspraak voor een persoonlijke rondleiding door onze makelaar, zodat u deze woning zelf kunt ontdekken.

LIGGING
Achtmaal is een charmant en landelijk gelegen dorp in de gemeente Zundert, nabij de Belgische grens. Het dorp staat bekend om zijn gemoedelijke sfeer, het sterke gemeenschapsgevoel en de prachtige natuurlijke omgeving. Met uitgestrekte bossen, wandel- en fietsroutes is het een geliefde plek voor rustzoekers en natuurliefhebbers.

Ondanks de rustige ligging biedt Achtmaal de nodige voorzieningen, zoals een basisschool, sportverenigingen, een dorpshuis en enkele horecagelegenheden. Voor uitgebreide voorzieningen en winkels liggen Zundert, Roosendaal en Etten-Leur op korte rijafstand. Ook de uitvalswegen richting Breda, Antwerpen en de Randstad zijn goed bereikbaar, wat Achtmaal tot een fijne woonlocatie maakt voor wie landelijk wil wonen met de stad binnen handbereik.

INDELING
BEGANE GROND
De woning heeft een uitnodigende uitstraling aan de voorzijde en heeft voldoende ruimte voor twee auto's op de naastgelegen oprit. De ontvangsthal weerspiegelt de stijl van de woning en biedt een sfeervolle entree. Vanuit deze hal heeft u toegang tot zowel de open keuken, trapopgang naar de eerste verdieping als de meterkast.

Bij binnenkomst in de woonkamer wordt u direct verwelkomd door een gevoel van ruimte en licht. De royale raampartijen en de erker aan de voorzijde bieden niet alleen een mooi uitzicht, maar geven de woning ook een warme en karaktervolle uitstraling. De gezellige sfeer wordt versterkt door de sfeervolle gashaard.
De vloer is afgewerkt met een houten vloer, terwijl de wanden strak zijn gestuct.

De ruime keuken profiteert van een overvloed aan natuurlijk licht dankzij het zijraam en een lichtstraat.

De keuken is uitgerust met een stijlvol composiet aanrechtblad en biedt alle moderne gemakken, waaronder een 4-pits gasfornuis met oven, ingebouwde afzuigkap, een vaatwasser en een koelkast.
Vanuit deze ruimte is de kelder toegankelijk.

Vanaf de woonkamer bereikt u een hal die toegang geeft tot de badkamer, toiletruimte en de achtertuin. Ook is vanuit de hal de praktische bijkeuken toegankelijk, deze ruimte is voorzien van aansluitingen voor zowel een wasmachine als een droger en is de c.v.-installatie netjes weggewerkt.

De badkamer sluit perfect aan bij de stijlvolle uitstraling van de woning en is ingericht met een comfortabel ligbad, een karakteristiek badkamermeubel met wastafel en een inloopdouche. De vloer is afgewerkt met vloertegels, wat bijdraagt aan zowel het comfort als de luxe uitstraling van deze ruimte.

Ook het toilet is geheel in stijl uitgevoerd en voorzien van een modern wandcloset en een fonteintje, geplaatst op een bijpassend meubel.

De hal aan de voorzijde van de woning is bereikbaar vanuit de woonkamer. Deze hal biedt toegang tot het toilet en de trap die naar de eerste verdieping leidt.

Het toilet is ruim en uitgerust met een wandcloset en een handig fonteintje.

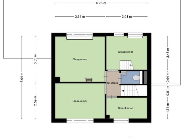
EERSTE VERDIEPING
Vanuit de hal bereikt u via de vaste trap de eerste verdieping. De overloop biedt toegang tot maar liefst vier slaapkamers. Daarnaast bevindt zich op deze verdieping een separate toiletruimte

Net als de rest van de woning zijn ook de slaapkamers sfeervol ingericht en afgewerkt met een mooie houten vloer. Twee van de kamers hebben een open nok, wat zorgt voor een ruimtelijk en karaktervol gevoel. Eén van de slaapkamers beschikt zelfs over een speelse vide, wat extra mogelijkheden biedt voor gebruik of indeling. Momenteel is één van de vier kamers in gebruik als praktische en ruime kleedkamer.

Het separate toilet is voorzien van een wandcloset en een fonteintje met meubel.

TUIN
De keurig aangelegde achtertuin is een heerlijke plek om te ontspannen en te genieten van het buitenleven. De tuin is verzorgd ingericht met een combinatie van bestrating, grind, een gazon en diverse vaste planten. Onder de stijlvolle overkapping die is voorzien van inbouwspots, een lichtstraat en een sfeervolle open haard, kunt u het hele jaar door comfortabel buiten zitten. Vanuit de tuin geniet u bovendien van een adembenemend vrij uitzicht over de achtergelegen landerijen, wat deze buitenruimte extra bijzonder maakt.

GARAGE
De ruime garage biedt niet alleen plaats voor het parkeren van een auto, maar leent zich ook uitstekend voor gebruik als hobbyruimte, werkplaats of extra bergruimte. De garage is voorzien van elektra, wat zorgt voor extra gebruiksgemak en veelzijdigheid in het gebruik van deze functionele ruimte.

BIJZONDERHEDEN
- Met hoogwaardige materialen uitgebouwde vrijstaande woning
- De woning in 2015 geheel gerenoveerd en uitgebouwd
- Ruime sfeervolle woonkamer met gashaard
- Keuken is voorzien van diverse inbouwapparatuur
- Maar liefst 4 volwaardige slaapkamers
- Luxe badkamer op de begane grond die is voorzien van alle gemakken
- De begane grond is geheel voorzien van vloerverwarming (met uitzondering van de hal)
- Gehele woning is voorzien van houten kozijnen met isolerende beglazing
- Energielabel C
- Royale zonnige achtertuin met veel privacy en een prachtig uitzicht over de achtergelegen landerijen
- Sfeervolle overkapping (2020) in de achtertuin
- Een oprit en garage (2020)
- Perceel ca. 545 m2

VERKOOPVOORWAARDEN
MEETINSTRUCTIE NEN2580
De gebruikte meetinstructie volgt de NEN2580-norm. Deze methode biedt een uniforme manier om het gebruiksoppervlak te benaderen. Door variaties in interpretatie, afronding of meetbeperkingen kunnen er toch afwijkingen ontstaan. De feitelijke situatie in het huis is leidend. De verstrekte oppervlakte-informatie is indicatief en mag niet als exact worden beschouwd. “Wat je ziet is wat je koopt” blijft het uitgangspunt.

RECHTSGELDIGE KOOPOVEREENKOMST PAS NA ONDERTEKENING
Een mondeling akkoord tussen particuliere verkoper en koper geldt niet als juridisch bindend. De koop is pas definitief zodra beide partijen de koopakte ondertekenen. Dit volgt uit artikel 7:2 van het Burgerlijk Wetboek. Een bevestiging per e-mail of een ontvangen conceptakte geldt eveneens niet als rechtsgeldige overeenkomst.

WAARBORGSOM OF BANKGARANTIE
Omdat De Huizenbemiddelaar lid is van de Vastgoed Nederland, wordt de koopakte opgesteld volgens het model van NVM, Vastgoed Nederland, Consumentenbond en Vereniging Eigen Huis. Daarin is standaard opgenomen dat een waarborgsom of bankgarantie vereist is, ter hoogte van tien procent van de overeengekomen koopsom.

ASBESTCLAUSULE
In woningen die zijn gebouwd vóór 1 juli 1993 is het gebruik van asbesthoudende materialen destijds gebruikelijk geweest, onder meer in (rook)kanalen, dakbeschot, tussenwanden, gevelbekleding, bij verwarmingstoestellen, warmwatervoorzieningen en vloeren. Koper erkent dat er mogelijk asbest is verwerkt. Koper is ervan op de hoogte dat het verwijderen van asbestmaterialen volgens milieuwetgeving onder strikte regels valt. Verkoper wordt gevrijwaard van elke aansprakelijkheid voortvloeiend uit aanwezigheid of verwijdering van asbest in of uit het pand.

OUDERDOMSCLAUSULE
Omdat de woning meer dan 20 jaar oud is, wordt een ouderdomsclausule opgenomen in de koopakte. De technische eisen aan dit pand liggen hierdoor aanzienlijk lager dan bij recente nieuwbouw. Koper aanvaardt dat afwijkingen ten opzichte van moderne bouweisen niet als tekortkoming kunnen worden aangemerkt en kan zich daar bij latere gebreken niet op beroepen.

VERKOOPDOCUMENTATIE
Deze verkoopinformatie is zorgvuldig samengesteld. Toch zijn wij grotendeels afhankelijk van derden voor de inhoudelijke juistheid. Daarom aanvaarden zowel de verkoper als wij geen enkele aansprakelijkheid voor eventuele onjuistheden in de verstrekte gegevens.

Bedankt voor uw interesse in deze woning! We nodigen u graag uit om een kijkje te komen nemen. Tijdens de bezichtiging laten we u zien hoe het huis er momenteel uitziet, maar we denken ook graag met u mee over de mogelijkheden. Misschien ziet u het net even anders, en dat begrijpen we maar al te goed. We staan open voor uw ideeën en bespreken graag hoe u de ruimtes naar uw eigen smaak en wensen kunt aanpassen. Vaak zijn er verrassend eenvoudige manieren om een woning helemaal naar uw hand te zetten.
Een bouwtechnische keuring is nimmer een probleem.

Heeft u vragen of wilt u een afspraak maken? Neem dan gerust contact met ons op, telefonisch of via e-mail. We helpen u graag verder. 

Kenmerken

Overdracht

Aangeboden sinds
1 juli 2025
Status
Verkocht
Aanvaarding
In overleg

Bouw

Soort woning
Woonhuis
Soort woonhuis
Eengezins woning
Type woonhuis
Vrijstaande woning
Bouwjaar
1955
Soort dak
Zadeldak

Oppervlakten en inhoud

Oppervlakte wonen
125 m²
Oppervlakte overige inpandige ruimte
29 m²
Oppervlakte gebouwgebonden buitenruimte
31 m²
Perceel
545 m²
Inhoud
573 m³

Indeling

Aantal kamers
5
Aantal slaapkamers
4
Aantal woonlagen
1 woonlaag

Energie

Energielabel
C
Isolatie
Dakisolatie en vloerisolatie
Verwarming
Cv-ketel en gashaard
Warm water
Cv-ketel
Cv-ketel
Remeha Tzerra (, eigendom)

Buitenruimte

Tuin
Tuin rondom

Garage

Soort garage
Aangebouwd steen
Capaciteit
1
Voorzieningen
Elektra

Media

Locatie

Meer informatie?