Neem contact op
Hoe kunnen wij je helpen?
22:04

Rodenburg 17

4711PV St. Willebrord

Verkocht

Omschrijving

Deze woning heeft een vaste prijs van € 650.000,-

Kom binnen in deze uitstekend onderhouden, vrijstaande woning en laat u verrassen door de ruimtelijkheid en de goede afwerking van dit huis. Als u op zoek bent naar een direct bewoonbare woning, dan nodigen wij u van harte uit om deze woning te ontdekken. Met een royale woonkamer, een eigentijdse keuken en niet één, maar twee volledig uitgeruste badkamers, waarvan één op de begane grond, biedt deze woning het ultieme in gemak en stijl.

Met vijf slaapkamers, waarvan één op de begane grond, is er voldoende ruimte voor het hele gezin, en de grote werkkamer biedt een ideale ruimte voor eventueel nog een slaapkamer of een beroep aan huis. De ruime tuinkamer/serre zorgt dat u het hele jaar door kunt genieten van de prachtige tuin.

De grote inpandige garage biedt niet alleen voldoende ruimte voor uw voertuigen, maar ook voor extra opslag of hobbyruimte.

Gelegen op een perceel van circa 512m2, biedt deze woning een perfecte balans tussen ruimte en comfort.

Kortom; een mooie vrijstaande woning, ideaal voor alle leeftijden of u nu op zoek bent naar een levensloopbestendige woning voor uw oude dag of gewoon wilt genieten van een gemakkelijke en gelijkvloerse indeling, deze woning biedt het allemaal!

Laat deze kans niet aan u voorbijgaan en maak een afspraak voor een bezichtiging. Onze makelaar leidt u graag rond in deze prachtige woning, die wellicht uw toekomstige thuis wordt!

LIGGING
Het kerkdorp Sint Willebrord is gelegen in de gemeente Rucphen in de provincie Noord-Brabant. Dichtbij zijn de gemeenten Etten-Leur, Halderberge, Roosendaal en Zundert. Door de centrale ligging van Sint Willebrord zijn de snelwegen en de steden Breda, Rotterdam en Antwerpen, goed te bereiken, dit maakt Sint Willebrord een fijne plaats om te wonen en te werken. Een fijn dorp met historie, dat alle voorzieningen heeft om het leven aangenaam en prettig te maken, zoals scholen, winkels, sport en ontspanning.

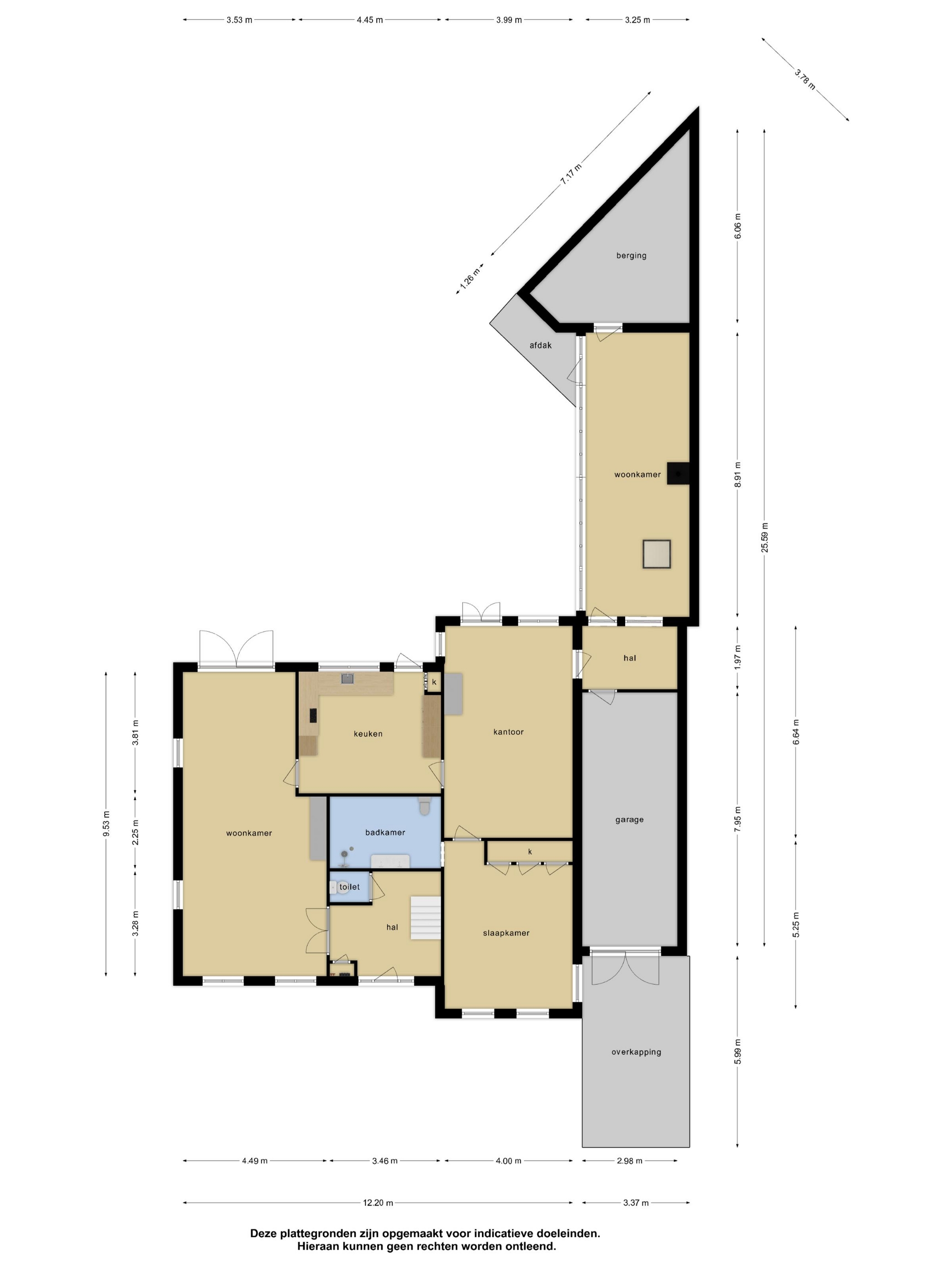
BEGANE GROND
Deze woning is gunstig gepositioneerd op het perceel, waardoor het aan de voorzijde een fraaie aanblik biedt en er voldoende ruimte is voor het parkeren van meerdere auto's op de twee eigen opritten. Bij binnenkomst wordt u verwelkomd in een ontvangsthal die helemaal in lijn is met de stijl van de woning, sfeervol en ruimtelijk! Een echte blikvanger is de houten trap met vide die naar de eerste verdieping leidt.

De travertinvloer in warme aardetinten strekt zich uit over de hal en de woonkamer, waardoor een harmonieuze en uitnodigende sfeer ontstaat. Vanuit de hal heeft u toegang tot de woonkamer, de toiletruimte en de meterkast.

De recent gerenoveerde toiletruimte is volledig betegeld en heeft een moderne, frisse uitstraling. Hier vindt u een strak wandcloset en een stijlvol fonteintje, wat zorgt voor een nette en moderne afwerking.

Via de dubbele openslaande deuren is er toegang tot de woonkamer en bij binnenkomen valt meteen de ruimte en de lichtinval in deze kamer op.
De openslaande tuindeuren aan de achterzijde van de woonkamer bieden naast lichtinval ook directe toegang tot de achtertuin, waardoor binnen en buiten naadloos in elkaar overlopen.De wanden zijn afgewerkt met schoonmetselwerk, terwijl het plafond is verfraaid met sierbalken. De aanwezigheid van een open haard voegt extra sfeer toe aan deze gezellige woonkamer.

De keuken beschikt over een ruim L-vormig keukenblok, een praktisch keukenmeubel en een keukeneiland, perfect voor gezellige momenten. Met voldoende opbergruimte in de onder- en bovenkasten, evenals in de lades, is er plaats voor al uw keukengerei. Dankzij de ingebouwde verlichting in deze opbergplekken behoudt u altijd het overzicht. Het plafond is voorzien van inbouwspots en Bluetooth speakers.

De keuken is compleet uitgerust met hoogwaardige inbouwapparatuur, waaronder een 5-pits inductiekookplaat, een afzuigkap die is gekoppeld aan de inductiekookplaat voor optimale ventilatie, een ruime koelkast, een handige vriezer, een combi-oven/magnetron en een vaatwasser.

Vanuit de keuken heeft u middels een loopdeur directe toegang tot de achtertuin. Tevens is vanuit deze keuken de werkkamer/kantoor toegankelijk.

Deze veelzijdige en functionele ruimte wordt momenteel gebruikt als werkkamer/kantoor, wat ideaal is als u een beroep aan huis uitoefent. Echter is deze ruimte ook uitermate geschikt voor verschillende andere doeleinden. Denk bijvoorbeeld aan het creëren van een speelkamer voor de kinderen of een eetkamer. Deze kamer is voorzien van vloerverwarming en een openhaard die zorgt voor de nodige sfeer. De openslaande tuindeuren geven toegang tot de achtertuin.

Vanuit deze ruimte is er toegang tot de slaapkamer met badkamer en-suite en de achterhal/bijkeuken.

De slaapkamer is net zoals de rest van de woning ruim en is voorzien van een airconditioning. Deze airco zorgt voor een aangename temperatuur, zo koelt deze in de zomer en verwarmt in de winter. De vloer is voorzien van vloerbedekking en de wanden zijn afgewerkt met schoonmetselwerk en vliesbehang. Deze kamer is voorzien van vloerverwarming. Vanuit deze slaapkamer is de badkamer op de begane grond toegankelijk.

De moderne badkamer is geheel betegeld en voorzien van vloerverwarming. De ruimte is uitgerust met een inloopdouche met regen- en handdouche, een dubbele wastafel in een badkamermeubel, een spiegelwandkast, een handdoekverwarmer/-droger en een wandcloset.

De hal aan de achterzijde van de woning biedt toegang tot de inpandige garage en tot de tuinkamer/serre.
In deze hal is een aansluiting voor een wasmachine en droger en deze is ook geschikt als bijkeuken.

Wat een heerlijke lichte ruimte is deze tuinkamer/serre, met een volledig te openen glazen wand haalt u zo buiten naar binnen en is het al snel genieten van het buiten zijn. Deze prachtige ruimte is uitgerust met een lichtkoepel, waardoor nog meer natuurlijk licht naar binnen stroomt en een gevoel van ruimtelijkheid wordt gecreëerd. De aanwezigheid van een houtkachel en de vloerverwarming zorgt er voor dat u het hele jaar door kunt genieten van deze ruimte.

Bovendien is er een afzuigkap geïnstalleerd, perfect voor het plaatsen van een buitenkeuken, waardoor u het hele jaar door ‘buiten’ kunt koken.
Aan de buitenzijde van deze ruimte is een zonneluifel geplaatst.

Aangrenzend aan deze tuinkamer/serre is een extra ruimte welke nu in gebruik is als hobbyruimte/opslag. Ook hier zijn diverse mogelijkheden te creëren. Zo is deze ruimte voorzien van vloerverwarming, warm en koud water en een lichtstraat die zorgt voor voldoende lichtinval.

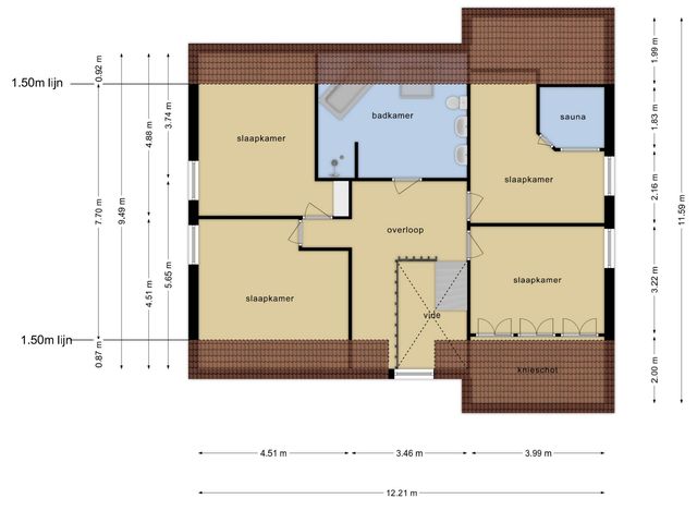
1STE VERDIEPING
Via de trap in de hal komt u op de overloop met vide van de 1e verdieping. De overloop is voorzien van vloerbedekking en geeft toegang tot 4 ruime slaapkamers, waarvan één in gebruik is als saunaruimte en één als sportruimte en de luxe badkamer.

Eén slaapkamer is voorzien van airco die zorgt voor een aangename temperatuur, u kunt er zowel mee koelen als verwarmen. Deze slaapkamer is voorzien van een kastenwand onder de dakschuinte wat zorgt voor voldoende opbergmogelijkheden.
De hoofdslaapkamer is eveneens voorzien van vloerbedekking en is een fijne, royale lichte ruimte.
De derde slaapkamer is eveneens ruim en hier is de vloer voorzien van vinyl. Deze ruimte is in gebruik als sportruimte.

De toevoeging van de saunaruimte verrijkt deze woning met extra luxe en comfort.
In deze ruimte is de c.v.-installatie netjes weggewerkt. Ook hier is de dakschuinte achter de sauna benut voor het maken van bergruimte.

De badkamer op deze etage is royaal en volledig uitgerust, met een ligbad, een inloopdouche, een dubbele wastafel en een wandcloset.
Het Velux dakraam zorgt voor voldoende natuurlijke daglichtinval.

GARAGE
De ruime, inpandige garage biedt voldoende ruimte voor het parkeren van uw auto. Bovendien is er voor de garage een handige carport geplaatst, waardoor er extra beschutting en ruimte is voor het parkeren van een uw auto.

ACHTERTUIN
De achtertuin is voorzien van sierbestrating, tuinverlichting, een diversiteit aan vaste planten, waterkraan, buitendouche en tuinverlichting.
Vanuit de achtertuin is via een poort de tweede oprit toegankelijk.

Een heerlijke tuin waar je, mede door de tuinkamer/serre het hele jaar buiten kunt genieten met eventueel een hapje of een drankje!

SAMENVATTEND
- Royale luxe vrijstaande woning met ruime inpandige garage
- Ruime sfeervolle woonkamer met openhaard
- Moderne keuken voorzien van diverse inbouwapparatuur
- Royale slaapkamer op de begane grond
- Maar liefst 4 volwaardige slaapkamers op de eerste verdieping, waarvan één in gebruik is als saunaruimte en één als sportruimte
- 2 Luxe badkamers die compleet zijn ingericht
- Sfeervolle tuinkamer/serre
- De begane grond is deels voorzien van vloerverwarming
- Gehele woning is voorzien van houten kozijnen met dubbele beglazing
- De raampartijen aan de voor- en zijkant van de woning zijn voorzien van screens
- De openslaande ramen op de begane grond zijn voorzien van vliegenhorren
- Ruime inpandige garage die voor meerdere doeleinden geschikt is
- Energielabel B
- Zonnige achtertuin met veel privacy
- Perceel 512 m2
- De woning is gelegen op een kindvriendelijk en rustige locatie

Hoewel deze verkoopinformatie met grote zorg is samengesteld, is dit slechts een indicatie. Er kunnen in geval van afwijkingen geen rechten aan worden ontleend.

Kenmerken

Overdracht

Aangeboden sinds
25 augustus 2025
Status
Verkocht
Aanvaarding
In overleg

Bouw

Soort woning
Woonhuis
Soort woonhuis
Eengezins woning
Type woonhuis
Vrijstaande woning
Bouwjaar
1991
Soort dak
Zadeldak

Oppervlakten en inhoud

Oppervlakte wonen
255 m²
Oppervlakte overige inpandige ruimte
40 m²
Oppervlakte gebouwgebonden buitenruimte
24 m²
Perceel
512 m²
Inhoud
1097 m³

Indeling

Aantal kamers
8
Aantal slaapkamers
5
Aantal woonlagen
1 woonlaag
Voorzieningen
Buitenzonwering, airconditioning, dakraam en sauna

Energie

Energielabel
B
Isolatie
Dakisolatie, vloerisolatie, volledig geïsoleerd en dubbel glas
Verwarming
Cv-ketel, open haard en vloerverwarming gedeeltelijk
Warm water
Cv-ketel
Cv-ketel
Nefit (, eigendom)

Buitenruimte

Tuin
Tuin rondom

Bergruimte

Schuur/berging
Aangebouwd steen
Voorzieningen
Voorzien van elektra en voorzien van water

Garage

Soort garage
Inpandig
Capaciteit
1
Voorzieningen
Verwarming, elektra en water

Media

Locatie

Meer informatie?