Neem contact op
Hoe kunnen wij je helpen?
11:23

Molenstraat 95b

4881GC Zundert

Verkocht

Omschrijving

Een recent gebouwd, energiezuinig (A+++), tweekamerappartement In het centrum van Zundert!
Dit hoekappartement is gelegen in het kleinschalige appartementencomplex ‘Albus” met een mooi uitzicht op de Prinsenstraat en de Molenstraat. Het appartement is er één met veel lichtinval en een woonoppervlakte van ca. 68 m2.

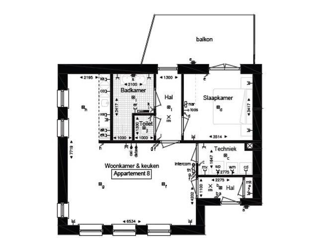
Het tweekamerappartement beschikt over een ruime woonkamer, compleet ingerichte open keuken, moderne badkamer 1 slaapkamer, ruim balkon, een berging van ca. 6 m2 en een eigen parkeerplaats.

LOCATIE
Dit appartement is gelegen in het centrum van Zundert. In de directe omgeving zijn mogelijkheden voor uw dagelijkse voorzieningen, evenals scholen, sportgelegenheden.
Uitvalswegen naar Breda en Antwerpen zijn met ca 10 autominuten bereikbaar. Ook de prachtige bossen en vennen met diverse fiets- en ruiterpaden zijn op korte afstand bereikbaar.

BEGANE GROND
De algemene, afsluitbare entree is voorzien van een intercom en brievenbussen. De drie woonlagen zijn te bereiken met behulp van een lift, maar ook via een afzonderlijke trap. De bergingen en de parkeerplaatsen zijn op het binnenterrein gesitueerd.

De hal is de spil van het appartement en geeft een goede indruk van de ruimte en afwerking die je mag verwachten. In de hal is een maatwerk garderobekast geplaatst. Deze hal biedt toegang tot de woonkamer.

De lichte en sfeervolle woonkamer heeft mooie raampartijen die zorgen voor een fijne lichtinval.
De wanden van de woonkamer zijn strak gestuct en de vloer is afgewerkt met een mooie PVC vloer. In de woonkamer is een airconditioner geplaatst.

De open keuken is voorzien van diverse onder-/ en bovenkasten en inbouwapparatuur zoals een koelkast, 4-pits inductie kookplaat, afzuigkap, combi-oven en een vaatwasser.

De slaapkamer heeft een PVC vloer en de wanden zijn afgewerkt met stucwerk, in de slaapkamer is een airconditioner geplaatst. De opslaande tuindeuren geven toegang tot het ruime balkon.

De badkamer is geheel betegeld en voorzien van een inloopdouche, een dubbele wastafel en een badkamermeubel.

Het toilet is deels betegeld en voorzien van een wandcloset met softclose toiletbril en een fonteintje.

De technische ruimte is voorzien van aansluitpunten ten behoeve van de wasapparatuur. Tevens is hier de opstelling van de mechanische ventilatie unit en een warmtepomp.

BIJZONDERHEDEN
- Ruim en instapklaar en sfeervol appartement
- Lichte woonkamer met airconditioner
- Open keuken met inbouwapparatuur
- Ruime slaapkamer met airconditioner
- Gehele appartement is voorzien van vloerverwarming
- Het appartement is geheel geïsoleerd en voorzien van isolerende beglazing
- Voorzien van 4 zonnepanelen
- Fijn balkon met een mooi uitzicht
- Eigen berging en parkeerplaats
- Energielabel A+++
- Op de parkeerplaats is een voorziening getroffen voor een oplaadstation voor een elektrische auto

Hoewel deze verkoopinformatie met grote zorg is samengesteld, is dit slechts een indicatie. Er kunnen in geval van afwijkingen geen rechten aan worden ontleend.

Kenmerken

Overdracht

Aangeboden sinds
28 maart 2025
Status
Verkocht
Aanvaarding
In overleg

Bouw

Soort woning
Appartement
Soort appartement
Galerijflat
Bouwjaar
2022

Oppervlakten en inhoud

Oppervlakte wonen
68 m²
Oppervlakte gebouwgebonden buitenruimte
14 m²
Oppervlakte externe bergruimte
5 m²
Inhoud
176 m³

Indeling

Aantal kamers
2
Aantal slaapkamers
1
Aantal woonlagen
1
Gelegen op
3
Voorzieningen
Lift en airconditioning

Energie

Energielabel
A+++
Isolatie
Volledig geïsoleerd en dubbel glas
Verwarming
Warmtepomp en warmte terugwininstallatie
Warm water
Centrale voorziening

Bergruimte

Schuur/berging
Vrijstaand hout
Voorzieningen
Voorzien van elektra

Vereniging van Eigenaren

Inschrijving KvK
Ja
Jaarlijkse vergadering
Ja
Periodieke bijdrage
Reservefonds aanwezig
Ja
Onderhoudsplan
Ja
Opstalverzekering
Ja

Media

Locatie

Meer informatie?