Neem contact op
Hoe kunnen wij je helpen?
22:02

Luitertweg 3

4882TE Klein Zundert

Verkocht

Omschrijving

Aan de rand van Klein-Zundert ligt een vrijstaande woning met bedrijfsbestemming op een prachtig verzorgd perceel van circa 18.385 m².
De plek voelt aan als een paradijs, waar ieder detail met zorg is onderhouden en is ingericht.
Ruimte is er volop, met een multifunctioneel bijgebouw, paardenstallen, paardenbak en dieren weides.
In de vrijstaande woning bevinden zich 4 slaapkamers, waarvan 1 op de begane grond, een royale woonkamer en een woonkeuken.
Een unieke kans voor iedereen die rust, natuur en kwaliteit zoekt.

LIGGING
De woning is gelegen aan de rand van Klein Zundert, dichtbij de basisschool.
Alle overige dagelijkse voorzieningen liggen op vijf autominuten gelegen in het centrum van Zundert, met volop keuze. Op fietsafstand liggen diverse prachtige natuurgebieden.
Zundert heeft volop mogelijkheden, scholen en sportgelegenheden. Uitvalswegen naar Breda en Antwerpen zijn met ca 10 autominuten bereikbaar.

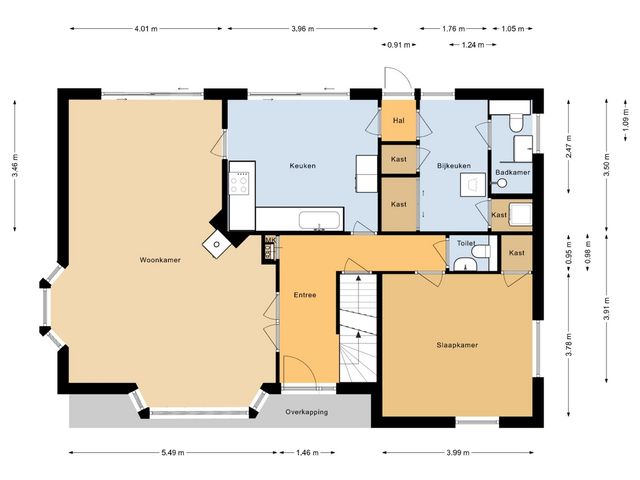
INDELING

BEGANE GROND
Bij aankomst wordt u meteen verrast door een fraai aangelegde, sfeervolle tuin die de woning een warm welkom geeft. Via de voordeur betreedt u de hal, die toegang biedt tot de ruime woonkamer met dubbele openslaande deuren, de keuken, de kelder, toiletruimte en slaapkamer. Ook vindt u hier de trapopgang naar de eerste verdieping.

De woonkamer is een prachtige ruimte met een sfeervolle schouw met gaskachel en een mooie houten vloer. De schuifpui biedt een fraai uitzicht op de tuin, terwijl het zijraam een weids panorama over de weides met dieren geeft. De geplaatste airconditioning zorgt voor aangename koelte op warme dagen en comfortabele warmte in de winter.
Vanuit de woonkamer is de keuken toegankelijk.

De ruime keuken biedt voldoende plaats voor een eettafel en geniet, net als de rest van de woning, van een prachtig uitzicht op de tuin. Het keukenblok is voorzien van onder- en bovenkasten en uitgerust met een elektrische kookplaat, een RVS afzuigkap en een vaatwasser. In de wand is een ingebouwd keukenmeubel geïntegreerd met een combi-magnetron, koelkast en vriezer.

Vanuit de keuken is de achter hal toegankelijk die toegang biedt tot de bijkeuken.

In de bijkeuken bevinden zich aansluitingen voor de wasmachine en droger en is er volop bergruimte in de inbouwkasten. Aansluitend op deze ruimte bevindt zich de doucheruimte, die is uitgerust met een douchecabine, een wastafel in een badkamermeubel en een toilet.

De royale slaapkamer op de begane grond beschikt over een ruime inbouwkast.

De volledig betegelde toiletruimte is uitgerust met een wandcloset en een fontein.

EERSTE VERDIEPING
Via de trap in de ontvangsthal bereikt u de eerste verdieping. De overloop is afgewerkt met inbouwspots en een laminaatvloer en biedt toegang tot drie slaapkamers en de badkamer.

Eén van de slaapkamers beschikt over een afsluitbare inloopkast en biedt daarnaast extra bergruimte in een vaste kast. Vanuit deze kamer geven tuindeuren toegang tot het balkon. Verder is hier een airconditioning geplaatst, waardoor het er altijd aangenaam koel is.
De andere slaapkamer is voorzien van een vaste kast waarin de cv-installatie en boiler netjes is weggewerkt.
De derde slaapkamer heeft een grote dakkapel die zorgt voor voldoende lichtinval.
Tevens zijn alle slaapkamers voorzien van elektrische verwarming.

De badkamer is extra ruim dankzij de grote dakkapel en is volledig betegeld. De ruimte is uitgerust met een dubbele wastafel met meubel, een royale inloopdouche, een ligbad en een wandcloset. Daarnaast is het plafond voorzien van inbouwspots en beschikt de vloer over comfortabele vloerverwarming en een elektrische verwarming.

GARAGE
De garage bij de woning biedt ruimte voor het parkeren van een auto en is voorzien van elektra en een elektrisch bedienbare sectionaaldeur. Daarnaast bevinden zich in deze ruimte de pomp voor de sproei-installatie en de ontijzeringsinstallatie voor de eigen waterput.

BIJGEBOUW/LOODS
Het grote multifunctionele bijgebouw is opgedeeld in twee delen. Dit bijgebouw is volledig geïsoleerd en voorzien van moderne voorzieningen zoals airconditioning, een warmtepomp en een luchtzuiveringssysteem . Het voorste deel wordt momenteel gebruikt als loods en is uitgerust met een grote overheaddeur.

Het achterste gedeelte is een ruime, lichte ruimte die momenteel dienst doet als yogaruimte, maar vanwege de veelzijdige indeling en voorzieningen uitstekend geschikt is voor uiteenlopende bedrijfsactiviteiten. Tevens beschikt deze ruimte over een toilet en opbergruimte.

Daarnaast is in de loods een aparte ruimte ingericht met een keukenblok, wat extra gebruiksgemak biedt voor diverse functies binnen het gebouw.

TUIN
De fraai aangelegde tuin biedt een rijke variatie aan vaste planten en diverse fruitbomen, wat elk seizoen een kleurrijk en levendig beeld oplevert. Het sfeervolle paviljoen is voorzien van elektra, dubbele beglazing en elektrische verwarming. Vanuit het paviljoen heeft u rondom een prachtig uitzicht over de tuin en de vijver. Daarnaast beschikt de tuin over een eigen “strandje” voor een ontspannen vakantiesfeer aan huis. Een paradijs vol flora en fauna waar u elke dag van kunt genieten.

STALLEN, PAARDENRIJBAK EN WEIDES
Er zijn vier paardenstallen, waarvan er één is ingericht voor het opbergen van voer en paardenspullen.
Tevens is er een grote paardenrijbak.

De weides zijn uitstekend geschikt voor het houden van paarden en/of kleinvee. In één van de weides staat een dierenverblijf dat doet denken aan een hooimijt, ideaal voor het onderbrengen van kippen of bijvoorbeeld geiten.

BESTEMMINGSPLAN
Op het perceel rust de bestemming ‘Bedrijf’ (artikel 9). Over de locatie ligt tevens de dubbelbestemming ‘waarde- Archeologie 4’ (artikel 28).
Voor een volledig overzicht van de bestemmingsmogelijkheden kunt u het geldende bestemmingsplan raadplegen via: https://www.ruimtelijkeplannen.nl/documents/NL.IMRO.0879.DHBPBuitengebied-VS01/r_NL.IMRO.0879.DHBPBuitengebied-VS01.html#NL.IMRO.PT.a9c200722ac2453db8a39d49db44c285
(Let op: betreft bestemming Bedrijf, niet agrarisch)

BIJZONDERHEDEN
- Ruime vrijstaande woning
- Royale woonkamer met prachtig zicht op de tuin
- Woonkeuken en bijkeuken
- Doucheruimte op de begane grond
- Compleet ingerichte badkamer op de eerste verdieping
- 4 slaapkamers waarvan één op de begane grond
- De woning is deels voorzien van houten kozijnen met dubbele beglazing en deels van kunststofkozijnen met dubbele beglazing
- Deels voorzien van rolluiken en deels voorzien van screens
- De begane grond van de woning is voorzien van vloerverwarming
- Aan de achterzijde van de woning is een groot breed zonnescherm geplaatst
- Geheel geïsoleerd, multifunctioneel bijgebouw, geschikt als bedrijfsruimte
- Op het bijgebouw zijn zonnepanelen geplaatst, beschikt over een warmtepomp, airco en luchtzuiveringsinstallatie
- Prachtig aangelegde tuin met diverse vaste planten en vijvers
- 4 paardenstallen, waarvan één gebruikt wordt als opslag
- Grote rijbak
- Diverse weides voor eventueel het houden van paarden en kleinvee
- Ruim perceel ca. 18.385 m2
- Voldoende parkeergelegenheid op eigen terrein
- Energielabel woning: B Energielabel bijgebouw: A

VERKOOPVOORWAARDEN
MEETINSTRUCTIE NEN2580
De gebruikte meetinstructie volgt de NEN2580-norm. Deze methode biedt een uniforme manier om het gebruiksoppervlak te benaderen. Door variaties in interpretatie, afronding of meetbeperkingen kunnen er toch afwijkingen ontstaan. De feitelijke situatie in het huis is leidend. De verstrekte oppervlakte-informatie is indicatief en mag niet als exact worden beschouwd. “Wat je ziet is wat je koopt” blijft het uitgangspunt.
RECHTSGELDIGE KOOPOVEREENKOMST PAS NA ONDERTEKENING
Een mondeling akkoord tussen particuliere verkoper en koper geldt niet als juridisch bindend. De koop is pas definitief zodra beide partijen de koopakte ondertekenen. Dit volgt uit artikel 7:2 van het Burgerlijk Wetboek. Een bevestiging per e-mail of een ontvangen conceptakte geldt eveneens niet als rechtsgeldige overeenkomst.
WAARBORGSOM OF BANKGARANTIE
Omdat De Huizenbemiddelaar lid is van de Vastgoed Nederland, wordt de koopakte opgesteld volgens het model van NVM, Vastgoed Nederland, Consumentenbond en Vereniging Eigen Huis. Daarin is standaard opgenomen dat een waarborgsom of bankgarantie vereist is, ter hoogte van tien procent van de overeengekomen koopsom.
NIET ZELFBEWONINGS CLAUSULE
De huidige eigenaar heeft zelf niet in de woning gewoond en is daarom niet in staat om de koper te informeren over eventuele eigenschappen of gebreken die alleen een bewoner zou kennen. Om die reden zal in de koopakte worden opgenomen dat de verkoper geen gebruikersinformatie kan verstrekken en geen aansprakelijkheid draagt voor onbekende gebreken.
Om deze reden is er geen vragenlijst van de woning aanwezig.
OUDERDOMSCLAUSULE
Omdat de woning meer dan 20 jaar oud is, wordt een ouderdomsclausule opgenomen in de koopakte. De technische eisen aan dit pand liggen hierdoor aanzienlijk lager dan bij recente nieuwbouw. Koper aanvaardt dat afwijkingen ten opzichte van moderne bouweisen niet als tekortkoming kunnen worden aangemerkt en kan zich daar bij latere gebreken niet op beroepen.
VERKOOPDOCUMENTATIE
Deze verkoopinformatie is zorgvuldig samengesteld. Toch zijn wij grotendeels afhankelijk van derden voor de inhoudelijke juistheid. Daarom aanvaarden zowel de verkoper als wij geen enkele aansprakelijkheid voor eventuele onjuistheden in de verstrekte gegevens.

Bedankt voor uw interesse in deze woning! We nodigen u graag uit om een kijkje te komen nemen. Tijdens de bezichtiging laten we u zien hoe het huis er momenteel uitziet, maar we denken ook graag met u mee over de mogelijkheden. Misschien ziet u het net even anders, en dat begrijpen we maar al te goed. We staan open voor uw ideeën en bespreken graag hoe u de ruimtes naar uw eigen smaak en wensen kunt aanpassen. Vaak zijn er verrassend eenvoudige manieren om een woning helemaal naar uw hand te zetten.
Een bouwtechnische keuring is nimmer een probleem.

Kenmerken

Overdracht

Aangeboden sinds
18 augustus 2025
Status
Verkocht
Aanvaarding
In overleg

Bouw

Soort woning
Woonhuis
Soort woonhuis
Eengezins woning
Type woonhuis
Vrijstaande woning
Bouwjaar
1975
Soort dak
Zadeldak

Oppervlakten en inhoud

Oppervlakte wonen
385 m²
Oppervlakte overige inpandige ruimte
91 m²
Oppervlakte gebouwgebonden buitenruimte
4 m²
Oppervlakte externe bergruimte
84 m²
Perceel
18385 m²
Inhoud
1858 m³

Indeling

Aantal kamers
5
Aantal slaapkamers
4
Aantal woonlagen
1 woonlaag
Voorzieningen
Tv-kabel, buitenzonwering, airconditioning, zonnecollectoren, rookkanaal en schuifpui

Energie

Energielabel
B
Isolatie
Dubbel glas
Verwarming
Cv-ketel en vloerverwarming gedeeltelijk
Cv-ketel
Nefit (, eigendom)

Buitenruimte

Tuin
Tuin rondom
Tuin rondom
Gelegen op het noordoosten

Garage

Soort garage
Vrijstaand steen
Capaciteit
1
Voorzieningen
Elektra en elektrische deur

Media

Locatie

Meer informatie?