Neem contact op
Hoe kunnen wij je helpen?
23:02

Kerkstraat 62

4751HP Oud Gastel

Verkocht

Omschrijving

Een absolute buitenkans! Deze sfeervolle halfvrijstaande stadswoning, is niet opgeknapt, maar compleet herbouwd in 2006 met kwaliteitsmaterialen, is uitermate geschikt voor bijv. kantoor/praktijk aan huis of voor senioren met alle mogelijkheden op de begane grond. Deze Parel ligt op een fraai perceel van ca. 434 m2 en heeft een schitterende tuin met veel privacy. De perfecte ligging in het hartje van Oud Gastel maakt het plaatje compleet.

Deze 2 laagse halfvrijstaande woning heeft een woonoppervlak van ca. 191 m2 , 3/4 slaapkamers, energielabel A+ en betonvloeren. Kosten nog moeite zijn gespaard tijdens de volledige herbouw (incl. fundering etc).

Om een goed beeld te krijgen is een vrijblijvende bezichtiging een aanrader. Laat deze kans niet lopen en ervaar wat deze woning te bieden heeft!

LIGGING
Wonen aan de Kerkstraat in Oud Gastel betekent genieten van een bijzondere locatie waar historie en hedendaagse architectuur samenkomen. Dit karakteristieke pand is met aandacht en vakmanschap geheel herbouwd tot een stijlvolle woonplek die perfect aansluit bij de authentieke sfeer van het dorp en het comfort van eigentijds wonen.
Daarnaast is de bereikbaarheid uitstekend. Via de A17 en A58 rijdt u vlot naar steden als Roosendaal, Etten-Leur en Breda.

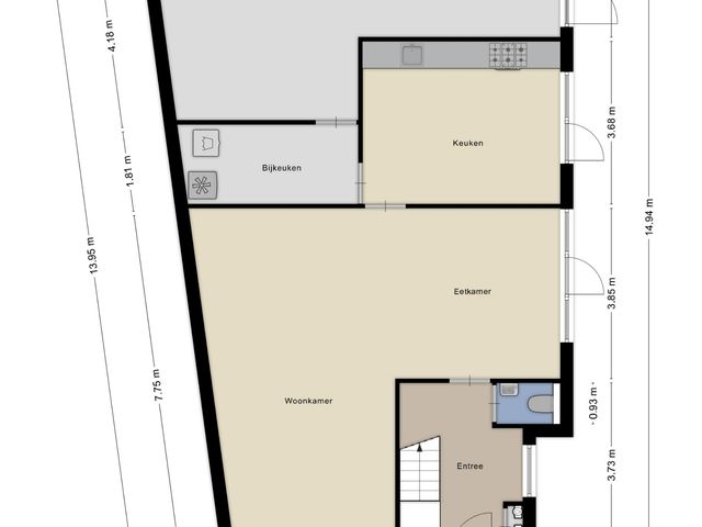
BEGANE GROND
Via de voordeur betreedt u de royale hal met een vide, een zijgevelraam, een moderne meterkast en een garderobenis. Vanuit de hal zijn het vrijhangend toilet met een fonteintje en de verrassende L-vormige living te bereiken. De living heeft een fraaie glazenpui met o.a. openslaande tuindeuren. Via de L-vormige living is de aantrekkelijke woon annex leefkeuken toegankelijk.

Deze toffe leefkeuken heeft o.a. openslaande tuindeuren naar de tuin en een verbindingsdeur naar de praktische bijkeuken. De nette inbouwkeuken heeft een duurzaam granieten aanrechtblad, is uitgerust met o.a. een rvs design afzuigkap, een stoer rvs kookfornuis (Solitaire) met 5 gaspitten, 1 wokbrander & een brede oven. Verder treft u aan een koelkast, een diepvriezer en een vaatwasmachine.

De praktische bijkeuken heeft een was en drogeraansluiting en een verbindingsdeur naar de multifunctionele L-vormige garage. Deze schitterende ruimte, ca. 3.00/4.50x9.25 m, met 2 zijgevelramen is eenvoudig, perfect te gebruiken bijv. als kantoor/praktijk, een mantelzorg ruimte, een hobbyruimte, maar ook geschikt voor een slaapkamer met een badkamer en een kleedkamer.

Door de goed geplaatste raampartijen komt er veel natuurlijk daglicht binnen. Dit geldt overigens voor de gehele woning. De betonvloer is overwegend afgewerkt met een moderne plavuizenvloer, met uitzondering van de living, want daar ligt een robuuste, massieve eikenhoutendelen vloer, de wanden als mede de plafonds zijn fijn gestuct. De binnendeuren zijn paneeldeuren.

EERSTE VERDIEPING
Een L-vormige overloop (betonvloer), met een fraaie vide biedt toegang tot 3 nette slaapkamers, een c.v.-ruimte met een warmte-terugwin-unit & een Nefit combi-ketel (beiden in 2024 vernieuwd) en een riante badkamer. Slaapkamer 1 ligt aan de voorzijde, slaapkamer 2 ligt aan de achterzijde en slaapkamer 3 heeft een royale dakkapel en ligt aan de zijgevel.

De verrassend ruime badkamer, ca, 2.88x3.87 m, heeft een forse dakkapel, is o.a. voorzien van een wastafelmeubel, een duo-ligbad, een handige inloopdouche en een vrijhangend toilet

De 2e woonlaag is voorzien van een lichte laminaatvloer, de wanden alsmede de plafonds zijn fijn gestuct. Ook op deze woonlaag hangen paneelbinnendeuren.

ACHTERTUIN
Deze stadswoning heeft een royale, fraai aangelegde zijtuin met diverse tuinkamers, is werkelijk een plaatje. De tuin, ca. 19 m diep, is o.a. voorzien van klinkerbestrating/gazon en diverse vaste planten die ieder jaargetijde kleur geven aan de tuin. Het aangrenzende zonneterras, ca. 4.05x8.65 m, ligt aan de zijgevel en kijkt vrij uit op o.a. de Kerk.

Via de Achterdijk kunt u middels een robuuste/schuifbare poort o.a. met uw auto de multifunctionele garage inrijden. De parkeerdruk in de Achterdijk ligt fors lager dan in de Kerkstraat.

Deze tuin is er één met veel privacy, waar je heerlijk kunt genieten.


BIJZONDERHEDEN:
- Volledig en smaakvol/compleet herbouwd
- De woning heeft betonvloeren, een uitstekend isolatie pakket & label A+
- Verder beschikt deze parel over een warmte-terugwin-unit en een Nefit c.v. combi-ketel van 2024
- De gehele woning is voorzien van houten kozijnen met HR dubbelglas
- Moderne inbouwkeuken
- Royale, complete ingerichte badkamer
- Perfect woonhuis voor bijv. kantoor/praktijk, mantelzorg/hobbyruimte en mogelijkheid om een nette slaapkamer met een badkamer te creëren
- Gelegen op een gewilde locatie, in de kern en nabij dichtbij alle voorzieningen

VERKOOPVOORWAARDEN
MEETINSTRUCTIE NEN2580
De gebruikte meetinstructie volgt de NEN2580-norm. Deze methode biedt een uniforme manier om het gebruiksoppervlak te benaderen. Door variaties in interpretatie, afronding of meetbeperkingen kunnen er toch afwijkingen ontstaan. De feitelijke situatie in het huis is leidend. De verstrekte oppervlakte-informatie is indicatief en mag niet als exact worden beschouwd. “Wat je ziet is wat je koopt” blijft het uitgangspunt.

RECHTSGELDIGE KOOPOVEREENKOMST PAS NA ONDERTEKENING
Een mondeling akkoord tussen particuliere verkoper en koper geldt niet als juridisch bindend. De koop is pas definitief zodra beide partijen de koopakte ondertekenen. Dit volgt uit artikel 7:2 van het Burgerlijk Wetboek. Een bevestiging per e-mail of een ontvangen conceptakte geldt eveneens niet als rechtsgeldige overeenkomst.

WAARBORGSOM OF BANKGARANTIE
Omdat De Huizenbemiddelaar lid is van de Vastgoed Nederland, wordt de koopakte opgesteld volgens het model van NVM, Vastgoed Nederland, Consumentenbond en Vereniging Eigen Huis. Daarin is standaard opgenomen dat een waarborgsom of bankgarantie vereist is, ter hoogte van tien procent van de overeengekomen koopsom.

ASBESTCLAUSULE
In woningen die zijn gebouwd vóór 1 juli 1993 is het gebruik van asbesthoudende materialen destijds gebruikelijk geweest, onder meer in (rook)kanalen, dakbeschot, tussenwanden, gevelbekleding, bij verwarmingstoestellen, warmwatervoorzieningen en vloeren. Koper erkent dat er mogelijk asbest is verwerkt. Koper is ervan op de hoogte dat het verwijderen van asbestmaterialen volgens milieuwetgeving onder strikte regels valt. Verkoper wordt gevrijwaard van elke aansprakelijkheid voortvloeiend uit aanwezigheid of verwijdering van asbest in of uit het pand.

OUDERDOMSCLAUSULE
Omdat de woning meer dan 20 jaar oud is, wordt een ouderdomsclausule opgenomen in de koopakte. De technische eisen aan dit pand liggen hierdoor aanzienlijk lager dan bij recente nieuwbouw. Koper aanvaardt dat afwijkingen ten opzichte van moderne bouweisen niet als tekortkoming kunnen worden aangemerkt en kan zich daar bij latere gebreken niet op beroepen.

VERKOOPDOCUMENTATIE
Deze verkoopinformatie is zorgvuldig samengesteld. Toch zijn wij grotendeels afhankelijk van derden voor de inhoudelijke juistheid. Daarom aanvaarden zowel de verkoper als wij geen enkele aansprakelijkheid voor eventuele onjuistheden in de verstrekte gegevens.

Bedankt voor uw interesse in deze woning! We nodigen u graag uit om een kijkje te komen nemen. Tijdens de bezichtiging laten we u zien hoe het huis er momenteel uitziet, maar we denken ook graag met u mee over de mogelijkheden. Misschien ziet u het net even anders, en dat begrijpen we maar al te goed. We staan open voor uw ideeën en bespreken graag hoe u de ruimtes naar uw eigen smaak en wensen kunt aanpassen. Vaak zijn er verrassend eenvoudige manieren om een woning helemaal naar uw hand te zetten.
Een bouwtechnische keuring is nimmer een probleem.

Heeft u vragen of wilt u een afspraak maken? Neem dan gerust contact met ons op, telefonisch of via e-mail. We helpen u graag verder.

Kenmerken

Overdracht

Aangeboden sinds
5 september 2025
Status
Verkocht
Aanvaarding
In overleg

Bouw

Soort woning
Woonhuis
Soort woonhuis
Eengezins woning
Type woonhuis
Halfvrijstaande woning
Bouwjaar
2006
Soort dak
Zadeldak

Oppervlakten en inhoud

Oppervlakte wonen
157 m²
Oppervlakte overige inpandige ruimte
33 m²
Perceel
434 m²
Inhoud
676 m³

Indeling

Aantal kamers
4
Aantal slaapkamers
3
Aantal woonlagen
1 woonlaag
Voorzieningen
Mechanische ventilatie, tv-kabel, zonnecollectoren, schuifpui en glasvezel kabel

Energie

Energielabel
A+
Isolatie
Dakisolatie, muurisolatie, vloerisolatie en volledig geïsoleerd
Verwarming
Cv-ketel
Warm water
Cv-ketel
Cv-ketel
Nefit (, eigendom)

Buitenruimte

Tuin
Zijtuin
Zijtuin
258 m² gelegen op het noordoosten

Garage

Soort garage
Inpandig
Capaciteit
1
Voorzieningen
Elektra
Isolatie
Muurisolatie, vloerisolatie, volledig geïsoleerd en dubbel glas

Media

Locatie

Meer informatie?