Neem contact op
Hoe kunnen wij je helpen?
08:10

Esserstraat 87

4813EJ BREDA

Beschikbaar

€ 369.000,- k.k.

Omschrijving

Ontdek dit sfeervolle 3-kamerappartement in hartje Princenhage. Gelegen op de eerste verdieping van het complex, biedt dit appartement een royale woonkamer, een praktische keuken, twee ruime slaapkamers, een nette badkamer én een garage! Een ideale plek voor wie comfortabel en centraal wilt wonen.

Wij nodigen u van harte uit om de sfeer van dit appartement zelf te ervaren tijdens een bezichtiging. Neem snel contact met ons op en laat ons u rondleiden in uw mogelijk toekomstige thuis!

LIGGING
Het appartement heeft een zeer gunstige ligging in harte Princenhage, in een straat met voornamelijk vooroorlogse woningen. Op loopafstand is de Haagsemarkt waar winkels en horeca zijn.
Op fietsafstand bent u zo in de binnenstad van Breda, Chassé Theater en het Centraal Station. De woning ligt gunstig ten opzichte van de uitvalswegen richting Rotterdam, Antwerpen (A16), Utrecht (A27), Eindhoven en Bergen op Zoom (A58).

BEGANE GROND
De centrale entree (met de brievenbussen) geeft toegang tot de hal met lift en het trappenhuis.

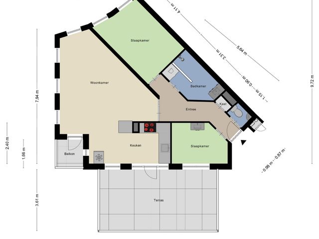
WOONKAMER
De verrassend ruime woonkamer valt direct op door de fijne lichtinval en het vrije uitzicht op de omgeving. Tevens staat de woonkamer in semi-open verbinding met de keuken. De vloer is voorzien van een donkere laminaatvloer. Via de woonkamer bereikt u het fijne balkon.

KEUKEN
De keuken is uitgerust met diverse onder- en bovenkasten en voorzien van een inductiekookplaat, afzuigkap en een nieuwe Bosch vaatwasser. Via de loopdeur bereikt u het grote en enige dakterras van het complex, waar u heerlijk kunt genieten van het vrije uitzicht.

SLAAPKAMERS
Beide slaapkamers profiteren van een prettige lichtinval dankzij de grote ramen. Hierdoor voelen de ruimtes licht en aangenaam aan.
De grootste slaapkamer heeft een vinylvloer en de kleinere slaapkamer heeft een industriële vloerbedekking (ca. 2 jaar oud).

BADKAMER
De badkamer is compleet uitgerust met een inloopdouche, een wasbak in een badkamermeubel en een spiegelwandkast. De ruimte is volledig betegeld en straalt een verzorgde en eigentijdse sfeer uit.

TOILET
Het toilet is voorzien van een hoekfontein en een originele sfeer.

GARAGE
De garage bevindt zich op de binnenplaats en is ideaal voor het parkeren van uw auto, het plaatsen van een fiets of opslag van extra spullen.
Ideaal is dat deze garage is voorzien van een elektrische deur met afstandsbediening.

VVE
De VvE kosten zijn ca. € 222,75 met daarin inbegrepen de opstalverzekering, de reservering voor groot en klein onderhoud, de schoonmaakkosten en de elektra van de algemene ruimten.

BIJZONDERHEDEN
- Sfeervol driekamerappartement in hartje Princenhage
- Royale lichte woonkamer
- Keuken met loopdeur naar het grote en enige dakterras van het complex
- 2 slaapkamers
- Eigen garage op het terrein
- Energielabel A
- Gelegen nabij het stadscentrum van Breda

Hoewel deze verkoopinformatie met grote zorg is samengesteld, is dit slechts een indicatie. Er kunnen in geval van afwijkingen geen rechten aan worden ontleend.

MEETINSTRUCTIE NEN2580
De gebruikte meetinstructie volgt de NEN2580-norm. Deze methode biedt een uniforme manier om het gebruiksoppervlak te benaderen. Door variaties in interpretatie, afronding of meetbeperkingen kunnen er toch afwijkingen ontstaan.
De feitelijke situatie in het huis is leidend. De verstrekte oppervlakte-informatie is indicatief en mag niet als exact worden beschouwd. “Wat je ziet is wat je koopt” blijft het uitgangspunt.

RECHTSGELDIGE KOOPOVEREENKOMST PAS NA ONDERTEKENING
Een mondeling akkoord tussen particuliere verkoper en koper geldt niet als juridisch bindend. De koop is pas definitief zodra beide partijen de koopakte ondertekenen.
Dit volgt uit artikel 7:2 van het Burgerlijk Wetboek. Een bevestiging per e-mail of een ontvangen conceptakte geldt eveneens niet als rechtsgeldige overeenkomst.

WAARBORGSOM OF BANKGARANTIE
Omdat De Huizenbemiddelaar lid is van de Vastgoed Nederland, wordt de koopakte opgesteld volgens het model van NVM, Vastgoed Nederland, Consumentenbond en Vereniging Eigen Huis.
Daarin is standaard opgenomen dat een waarborgsom of bankgarantie vereist is, ter hoogte van tien procent van de overeengekomen koopsom.

VERKOOPDOCUMENTATIE
Deze verkoopinformatie is zorgvuldig samengesteld. Toch zijn wij grotendeels afhankelijk van derden voor de inhoudelijke juistheid.
Daarom aanvaarden zowel de verkoper als wij geen enkele aansprakelijkheid voor eventuele onjuistheden in de verstrekte gegevens.

Kenmerken

Overdracht

Vraagprijs
€ 369.000 k.k.
Vraagprijs per m²
€ 5.055
Aangeboden sinds
1 december 2025
Status
Beschikbaar
Aanvaarding
In overleg
Bijdrage VvE
€ 222,75 per maand

Bouw

Soort woning
Appartement
Soort appartement
Portiekwoning
Bouwjaar
1993
Soort dak
Plat dak

Oppervlakten en inhoud

Oppervlakte wonen
73 m²
Oppervlakte gebouwgebonden buitenruimte
28 m²
Oppervlakte externe bergruimte
21 m²
Inhoud
243 m³

Indeling

Aantal kamers
3
Aantal slaapkamers
2
Aantal badkamers
1
Badkamervoorzieningen
Wastafelmeubel, inloopdouche en wasmachineaansluiting
Aantal woonlagen
1
Gelegen op
1

Energie

Energielabel
A
Isolatie
Dubbel glas
Warm water
Cv-ketel
Cv-ketel
Combiketel

Buitenruimte

Tuin
Geen tuin

Garage

Soort garage
Garagebox
Capaciteit
1
Voorzieningen
Elektrische deur

Vereniging van Eigenaren

Inschrijving KvK
Ja
Jaarlijkse vergadering
Ja
Reservefonds aanwezig
Ja
Onderhoudsplan
Ja
Opstalverzekering
Ja

Media

Locatie

Meer informatie?