Neem contact op
Hoe kunnen wij je helpen?
09:35

Bredabaan 64-Bbu

Wuustwezel

Beschikbaar

€ 249.000,- k.k.

Omschrijving

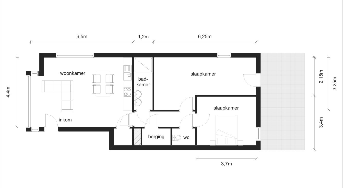
Instapklaar 2 slpk. appartement, gelegen op de Bredabaan te Wuustwezel

INDELING
- Inkomhal
- Keuken
- Lichtrijke woonkamer
- 2 Slaapkamers
- Badkamer met douche
- Terras

BIJZONDERHEDEN
- Ideaal investering of startersappartement
- Autostaanplaats aan te kopen aan € 7.000,-
- In hetzelfde gebouw ook reeds verhuurde appartementen beschikbaar, ideaal voor een onmiddellijk rendement

WONEN IN WUUSTWEZEL
Wonen in Wuustwezel betekent genieten van de landelijke charme van de Noorderkempen, met de stad Antwerpen op korte afstand. Deze rustige gemeente biedt een ideale balans tussen natuur, ruimte en uitstekende verbindingen, perfect voor gezinnen, natuurliefhebbers en wie van de buitenlucht houdt.

Deze woning wordt aangeboden in samenwerking met De Boer & Partners Immobiliën groep.

Kenmerken

Overdracht

Vraagprijs
€ 249.000 k.k.
Vraagprijs per m²
€ 2.830
Aangeboden sinds
1 december 2025
Status
Beschikbaar
Aanvaarding
In overleg

Bouw

Soort woning
Appartement
Soort appartement
Benedenwoning
Bouwjaar
1972

Oppervlakten en inhoud

Oppervlakte wonen
88 m²
Inhoud
255 m³

Indeling

Aantal kamers
3
Aantal slaapkamers
2
Aantal woonlagen
1
Gelegen op
1

Energie

Energielabel
C
Isolatie
Dubbel glas en volledig geïsoleerd

Buitenruimte

Tuin
Geen tuin

Garage

Soort garage
Geen garage

Media

Locatie

Meer informatie?