Neem contact op
Hoe kunnen wij je helpen?
22:57

Bijltjesstraat 2

4884MJ Wernhout

Verkocht

Omschrijving

Een charmante, goed onderhouden vrijstaande woning, prachtig gelegen in het buitengebied van Wernhout, op een royaal perceel van circa 1.015 m².
Vanuit de woning geniet u van een weids en adembenemend uitzicht over de omliggende landerijen, wat zorgt voor rust en privacy.
De ruime woonkamer met open keuken vormt het hart van het huis en biedt volop licht en comfort. Op de begane grond bevinden zich tevens een slaapkamer en een badkamer, ideaal voor gelijkvloers wonen.
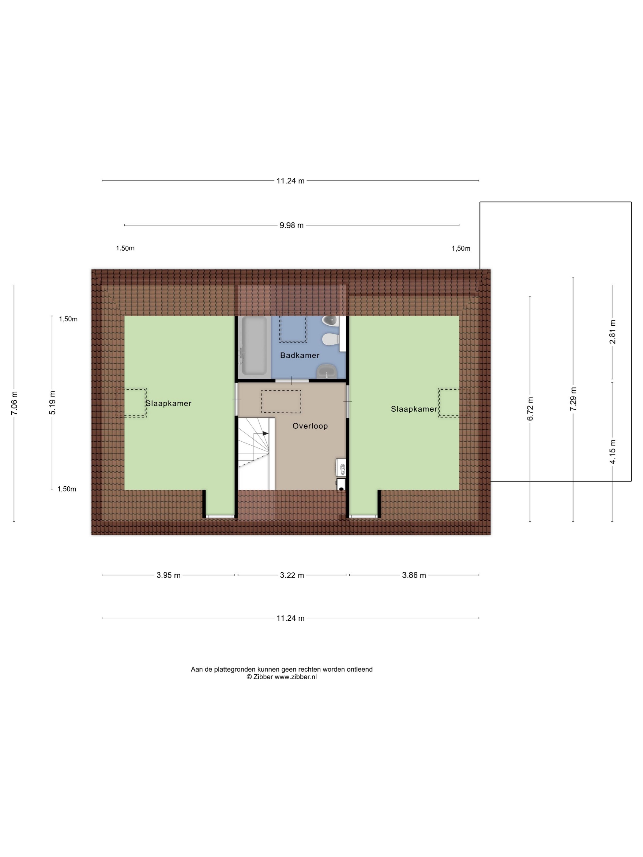
De eerste verdieping beschikt over twee extra slaapkamers en een tweede badkamer.

Daarnaast beschikt de woning over een aangebouwde garage, ideaal voor het parkeren van uw auto, fietsen of het creëren van extra bergruimte. Tevens zou deze ruimte geschikt zijn voor een kantoor aan huis of een aan huisgebonden beroep.
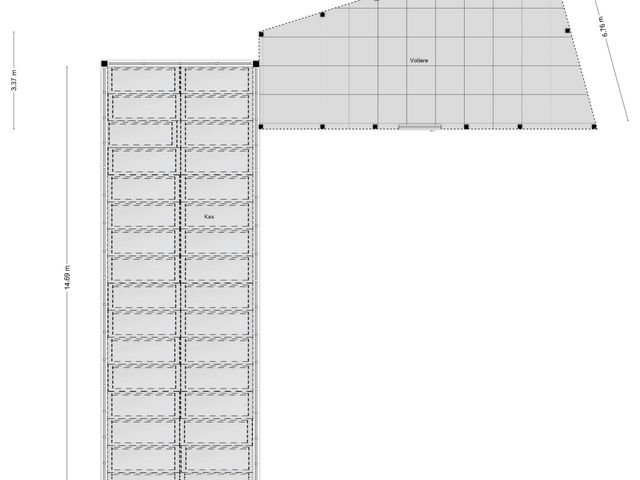
Een absoluut pluspunt is de fraai aangelegde tuin. Aan de voorzijde een sierlijke voortuin die direct in het oog springt en aan de achterzijde een royale buitenruimte met onder andere een tuinkas voor liefhebbers van tuinieren. Hier kunt u in alle rust genieten van het buitenleven.
Een unieke kans voor wie landelijk wil wonen met alle gemakken binnen handbereik!

Niet onbelangrijk is dat de woning is uitgerust met 13 zonnepanelen, wat bijdraagt aan duurzaamheid en lagere energiekosten. Energielabel van de woning is A+!

Is uw interesse gewekt door deze beschrijving? Neem gerust contact met ons op om een afspraak te maken voor een bezichtiging van deze prachtige woning.

LIGGING
Vrij gelegen, middenin het groen, in het zuidelijke puntje van Brabant tegen de Belgische grens. De omgeving kenmerkt zich door veel natuur o.a. de uitgestrekte bossen rond de Buijsse Heide (Henriette Roland Holst wandelingen). U verblijft dagelijks in de natuur met deze woning.

Wernhout is een mooi en rustig kerkdorp op loop/fietsafstand van de woning, behorende tot de gemeente Zundert met o.a. enkele horecavoorzieningen, basisschool, supermarkt en bakkerij. Het centrum van Zundert ligt op slechts 10 minuten afstand. Het object is goed ontsloten en ligt ca. 6 autominuten afstand van de snelweg A-16 Rotterdam – Breda en Antwerpen, maar ook Roosendaal of Etten-Leur zijn goed aan te rijden.

BEGANE GROND
Bij aankomst op de oprit valt direct de verzorgde uitstraling van de woning op, met een keurig aangelegde voortuin. De oprit biedt bovendien voldoende ruimte om meerdere auto’s te parkeren.

De hal biedt toegang tot de woonkamer, de trap naar de eerste verdieping, een slaapkamer en de meterkast. De wanden zijn afgewerkt met behang en de tegelvloer in aardetinten loopt door naar de woonkamer.

Bij binnenkomst in de woonkamer vallen de royale raampartijen meteen op, waardoor de ruimte volop natuurlijk licht ontvangt. Aan de voorzijde biedt het raam een fantastisch uitzicht over de uitgestrekte landerijen, terwijl de sfeervolle gaskachel zorgt voor warmte en gezelligheid op koelere dagen.

De open keuken is praktisch en stijlvol ingericht, met diverse lades en onderkasten die volop bergruimte bieden. Het natuurstenen werkblad geeft de keuken een luxe uitstraling. Bij de dubbele spoelbak bevindt zich een groot raam dat een prachtig uitzicht biedt op de achtertuin. De keuken is compleet uitgerust met inbouwapparatuur, waaronder een 4-pits inductiekookplaat met RVS-afzuigkap, oven, vaatwasser en koel-vriescombinatie. Aansluitend bevindt zich een handige voorraadkast. Vanuit de keuken is er tevens directe toegang tot de achterhal van de woning.

Op de begane grond bevindt zich een comfortabele slaapkamer met een vinylvloer en behangen wanden. Vanuit deze slaapkamer is direct toegang tot een badkamer, wat zorgt voor extra gemak en privacy.

De badkamer is volledig betegeld en uitgerust met een douchecabine, een wastafel met bijpassend meubel en een toilet.

De toiletruimte in de ontvangst is geheel betegeld en bestaat uit een fonteintje en een wandcloset.

EERSTE VERDIEPING
Via de trap in de hal komt u op de overloop. Vanuit hier zijn twee slaapkamers en de tweede badkamer te bereiken. Tevens is op deze overloop de cv-ketel, de omvormer van de zonnepanelen en de ventilatie-unit geplaatst.

De slaapkamers op de verdieping zijn royaal van formaat en bieden de mogelijkheid om, indien gewenst, extra kamers te realiseren. De wanden zijn gestuct en de vloeren afgewerkt met vinyl. Dankzij de dakkapellen en dakramen genieten beide kamers van een overvloed aan natuurlijk licht, wat zorgt voor een frisse en aangename sfeer.

De badkamer op deze verdieping is geheel betegeld in een lichte kleurstelling en voorzien van een ligbad, wastafel, toilet en bidet.

GARAGE
De aangebouwde garage, met ruimte voor een auto, is direct bereikbaar vanuit de achterhal van de woning. De garage is voorzien van extra’s zoals een elektrische sectionaaldeur en wateraansluiting. Daarnaast is er een aansluitpunt voor zowel wasmachine als droger.

TUIN
De zonnige achtertuin biedt volop privacy en is een heerlijke plek om te genieten van zowel zon als schaduw. De tuin is verzorgd ingericht met sierbestrating en diverse terrassen, perfect om buiten te ontspannen. Een bijzondere eyecatcher is de tuinkas, waarin op dit moment diverse groenten en druiven worden gekweekt. De kas is uitgerust met elektra en bevat de hemelwaterpomp van de watersilo, wat zorgt voor een duurzaam irrigatiesysteem.

Achterin de tuin bevindt zich een fruithal van een verzinkt stalen constructie afgedekt met kunststof gaas. In deze fruithal zijn onder andere kersenbomen, pruimenbomen, bramenstruiken en blauwe bessenstruiken.

Daarnaast is er een ruime berging met elektra, compleet met een sfeervolle overkapping waar het ieder seizoen heerlijk vertoeven is. Ook is er een praktisch keukenblok met spoelbak aanwezig, ideaal voor tuinactiviteiten.

BIJZONDERHEDEN
- Levensloopbestendige vrijstaande woning (2012) met aangebouwde garage
- Gelegen in het buitengebied van Wernhout met een prachtig uitzicht over de landerijen
- Ruime sfeervolle woonkamer met gashaard
- Open keuken met diverse inbouwapparatuur
- Slaapkamer met badkamer op de begane grond
- Maar liefst 2 volwaardige slaapkamers op de eerste verdieping
- Royale badkamer op de eerste verdieping
- Gehele woning is voorzien van houten kozijnen met HR beglazing
- Begane grond is voorzien van vloerverwarming met uitzondering van de garage
- De woning is voorzien van 13 zonnepanelen
- Ruime garage
- Energielabel A+
- De meterkast is uitgevoerd met krachtstroom
- Royale zonnige achtertuin met veel privacy
- Perceel ca. 1.015 m2

VERKOOPVOORWAARDEN
MEETINSTRUCTIE NEN2580
De gebruikte meetinstructie volgt de NEN2580-norm. Deze methode biedt een uniforme manier om het gebruiksoppervlak te benaderen. Door variaties in interpretatie, afronding of meetbeperkingen kunnen er toch afwijkingen ontstaan. De feitelijke situatie in het huis is leidend. De verstrekte oppervlakte-informatie is indicatief en mag niet als exact worden beschouwd. “Wat je ziet is wat je koopt” blijft het uitgangspunt.

RECHTSGELDIGE KOOPOVEREENKOMST PAS NA ONDERTEKENING
Een mondeling akkoord tussen particuliere verkoper en koper geldt niet als juridisch bindend. De koop is pas definitief zodra beide partijen de koopakte ondertekenen. Dit volgt uit artikel 7:2 van het Burgerlijk Wetboek. Een bevestiging per e-mail of een ontvangen conceptakte geldt eveneens niet als rechtsgeldige overeenkomst.

WAARBORGSOM OF BANKGARANTIE
Omdat De Huizenbemiddelaar lid is van de Vastgoed Nederland, wordt de koopakte opgesteld volgens het model van NVM, Vastgoed Nederland, Consumentenbond en Vereniging Eigen Huis. Daarin is standaard opgenomen dat een waarborgsom of bankgarantie vereist is, ter hoogte van tien procent van de overeengekomen koopsom.

VERKOOPDOCUMENTATIE
Deze verkoopinformatie is zorgvuldig samengesteld. Toch zijn wij grotendeels afhankelijk van derden voor de inhoudelijke juistheid. Daarom aanvaarden zowel de verkoper als wij geen enkele aansprakelijkheid voor eventuele onjuistheden in de verstrekte gegevens.

Bedankt voor uw interesse in deze woning! We nodigen u graag uit om een kijkje te komen nemen. Tijdens de bezichtiging laten we u zien hoe het huis er momenteel uitziet, maar we denken ook graag met u mee over de mogelijkheden. Misschien ziet u het net even anders, en dat begrijpen we maar al te goed. We staan open voor uw ideeën en bespreken graag hoe u de ruimtes naar uw eigen smaak en wensen kunt aanpassen. Vaak zijn er verrassend eenvoudige manieren om een woning helemaal naar uw hand te zetten.
Een bouwtechnische keuring is nimmer een probleem.

Heeft u vragen of wilt u een afspraak maken? Neem dan gerust contact met ons op, telefonisch of via e-mail. We helpen u graag verder.

Kenmerken

Overdracht

Aangeboden sinds
3 september 2025
Status
Verkocht
Aanvaarding
In overleg

Bouw

Soort woning
Woonhuis
Soort woonhuis
Eengezins woning
Type woonhuis
Vrijstaande woning
Bouwjaar
2012

Oppervlakten en inhoud

Oppervlakte wonen
137 m²
Oppervlakte overige inpandige ruimte
31 m²
Oppervlakte gebouwgebonden buitenruimte
4 m²
Oppervlakte externe bergruimte
89 m²
Perceel
1015 m²
Inhoud
626 m³

Indeling

Aantal kamers
4
Aantal slaapkamers
3
Aantal woonlagen
1 woonlaag
Voorzieningen
Mechanische ventilatie en zonnecollectoren

Energie

Energielabel
A+
Isolatie
Vloerisolatie, volledig geïsoleerd en dubbel glas
Verwarming
Cv-ketel en gaskachels
Warm water
Cv-ketel
Cv-ketel
Remeha (, eigendom)

Buitenruimte

Tuin
Tuin rondom
Tuin rondom
Gelegen op het noorden

Bergruimte

Schuur/berging
Vrijstaand steen

Garage

Soort garage
Aangebouwd steen
Capaciteit
1
Voorzieningen
Elektra en water

Media

Locatie

Meer informatie?