Neem contact op
Hoe kunnen wij je helpen?
08:11

Beemd 12

4854SC BAVEL

Beschikbaar

€ 699.000,- k.k.

Omschrijving

Welkom aan de Beemd 12 te Bavel. Een traditioneel vrijstaand woonhuis, speels uitgebouwd, met een multifunctionele garage, op een aantrekkelijk perceel, nabij de gezellige dorpskern en een op rustige, kindvriendelijke locatie.

LIGGING
Scholen, openbaar vervoer, winkels, speel-/sportmogelijkheden en de natuur zijn op korte afstand aanwezig. De woonomgeving is hierdoor (ook) ideaal voor gezinnen met kinderen. De verbindingen naar Breda (zoals snelfietspaden) en de aansluitingen op het centrale wegennet zijn zonder meer goed. Bavel is een dorp met een uitstekend woon-/leefklimaat voor jong en oudere.

BEGANE GROND
Een L-vormige entree/hal met een moderne meterkast. Vanuit de hal zijn de kelder, het vrijhangend toilet met fonteintje en de L-vormige woonkamer toegankelijk. De sfeervolle woonkamer heeft goed geplaatste raampartijen, een betonvloer met een duurzame PVC vloer, een verbindingsdeur naar de dichte keuken en een loopdeur naar de achtertuin.
Door de goed geplaatste raampartijen komt er veel daglicht binnen en is er tevens prettig contact met de omgeving. Dit geldt overigens voor de gehele woning.

De degelijke inbouwkeuken ligt eveneens aan de achterzijde, heeft een praktische ingebouwde kast, een strakke designradiator, een achtergevelraam, een verbindingsdeur naar de bijkeuken en een loopdeur naar de vrije/royale achtertuin.
De complete L-vormige inbouwkeuken is uitgerust met een afzuigkap, een inductiekookplaat, combi-oven, vaatwasmachine, koelkast en diepvriezer en een rvs combimagnetron. De semi-open bijkeuken heeft een handige pantry met een spoelbak, een werkblad en een was-/drogeraansluiting.
Aansluitend komt u in een klein portaal met een hoekfonteintje, toegang tot het toilet en de multifunctionele ruimte. De multifunctionele ruimte is met spouwmuren gebouwd, heeft een betonvloer en centrale verwarming. Deze ruimte is perfect voor bijv. kantoor-/praktijk-/hobbyruimte/mantelzorg & minder valide mensen. Middels een loopdeur is de achtertuin te bereiken.

De begane grond heeft overwegend een moderne, onderhoudsvriendelijke PVC laminaatvloer, de wanden zijn fijn gespachteld en de plafonds zijn gestuct.

EERSTE VERDIEPING
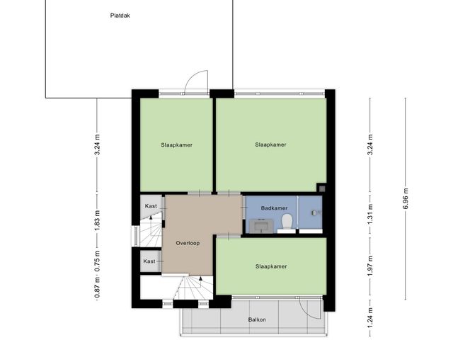
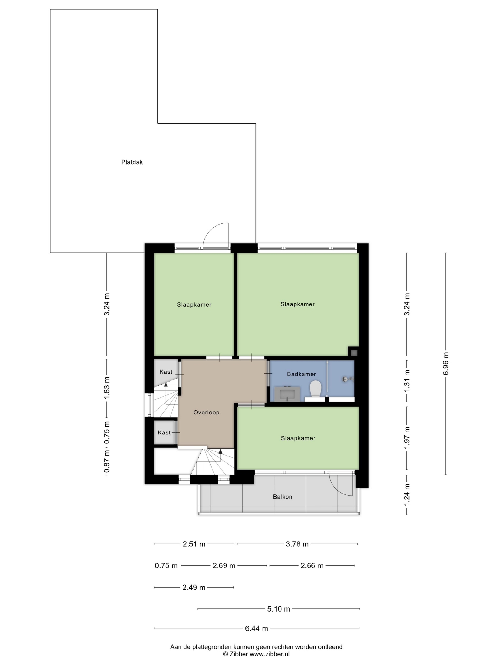
Aan de ruime overloop met een trapopgang naar de 2e verdieping, een ingebouwde kast, een handige trap-/bergkast grenzen de 3 slaapkamers en de eigentijdse badkamer.

Slaapkamer 1 en 2 liggen aan de achterzijde. Slaapkamer 3 ligt aan de voorzijde. Slaapkamer 1 heeft een loopdeur naar het platte dak en slaapkamer 3 heeft een loopdeur naar het balkon, ca. 1.16x5.08 m aan de voorzijde.
De moderne badkamer (2023) met inbouwspotjes, mechanische ventilatie en een designradiator, is voorzien van een handige inloopdouche met een fraai uitschuifbaar glazen scherm, een vrijhangend toilet en een wastafelmeubel.
Op deze woonlaag ligt overwegend een lichte laminaatvloer en de wanden zijn fijn gespachteld.

TWEEDE VERDIEPING
De 2e verdieping is middels een vaste trap te bereiken en bestaat uit een royale overloop met een nokhoogte van ca. 2.55 m en een 4e slaapkamer.

De overloop heeft een staand zijgevelraam en een opstelplaats voor de Vaillant C.V. ketel. Het creëren van een extra werk-/speelhoek in de overloop is zondermeer mogelijk.

De 4e slaapkamer heeft een forse dakkapel (kunststof), een wastafel, extra bergruimte in de knieschotten (voor & achter) en een speels klein staand zijgevelraam.
Op deze verdieping ligt overwegend vloerbedekking.

TUIN
Het traditioneel gebouwde, goed onderhouden vrijstaande woonhuis (riant uitgebouwd), met een zeer diepe multifunctionele garage en een separate werk-/kantoor-/hobbyruimte wordt omgeven door een eigen tuin.

De verwarmde garage, ca. 2.64/2.73x14.05 m, is in spouwmuren gebouwd, heeft elektra, een betonvloer, een sectionale garagedeur en 3 loopdeuren in de zijgevel. Voor de garage beschikt de woning zelfs over zeer diepe oprit, ca. 2.90x15.45 m, ca. 3/4 eigen parkeerplaatsen achter elkaar.
De voortuin zorgt voor extra privacy in de woning en maakt het straatbeeld beduidend fraaier. Middels een afsluitbare poort is de aantrekkelijke achtertuin te bereiken. Deze vrije achtertuin ligt gunstig op het zuidwesten. Door deze ligging kunt u kiezen voor volop genieten van de zon of een schaduwrijke plek opzoeken. Ook uw privacy is optimaal.
De tuinen lopen naadloos in elkaar over.

BIJZONDERHEDEN
- Vrijstaand, uitgebouwde woning
- Mogelijkheden om levensloopbestendig te maken
- 4 slaapkamers
- Is voorzien van 8 zonnepanelen
- Royale oprit voor ca. 3/4 auto’s achter elkaar
- Garage
- Energielabel C
Een perfect pand om bijv. een kantoor-/praktijk-/hobbyruimte aan huis te combineren! Voor de juiste bestemmingsmogelijkheden verwijzen wij u door naar het Stadskantoor Breda.
Deze robuuste parel is goed onderhouden en direct te bewonen, maar plaatselijk mogelijk minder hip.

VERKOOPVOORWAARDEN
MEETINSTRUCTIE NEN2580
De gebruikte meetinstructie volgt de NEN2580-norm. Deze methode biedt een uniforme manier om het gebruiksoppervlak te benaderen. Door variaties in interpretatie, afronding of meetbeperkingen kunnen er toch afwijkingen ontstaan. De feitelijke situatie in het huis is leidend. De verstrekte oppervlakte-informatie is indicatief en mag niet als exact worden beschouwd. “Wat je ziet is wat je koopt” blijft het uitgangspunt.

RECHTSGELDIGE KOOPOVEREENKOMST PAS NA ONDERTEKENING
Een mondeling akkoord tussen particuliere verkoper en koper geldt niet als juridisch bindend. De koop is pas definitief zodra beide partijen de koopakte ondertekenen. Dit volgt uit artikel 7:2 van het Burgerlijk Wetboek. Een bevestiging per e-mail of een ontvangen conceptakte geldt eveneens niet als rechtsgeldige overeenkomst.

WAARBORGSOM OF BANKGARANTIE
Omdat De Huizenbemiddelaar lid is van de Vastgoed Nederland, wordt de koopakte opgesteld volgens het model van NVM, Vastgoed Nederland, Consumentenbond en Vereniging Eigen Huis. Daarin is standaard opgenomen dat een waarborgsom of bankgarantie vereist is, ter hoogte van tien procent van de overeengekomen koopsom.

ASBESTCLAUSULE
In woningen die zijn gebouwd vóór 1 juli 1993 is het gebruik van asbesthoudende materialen destijds gebruikelijk geweest, onder meer in (rook)kanalen, dakbeschot, tussenwanden, gevelbekleding, bij verwarmingstoestellen, warmwatervoorzieningen en vloeren. Koper erkent dat er mogelijk asbest is verwerkt. Koper is ervan op de hoogte dat het verwijderen van asbestmaterialen volgens milieuwetgeving onder strikte regels valt. Verkoper wordt gevrijwaard van elke aansprakelijkheid voortvloeiend uit aanwezigheid of verwijdering van asbest in of uit het pand.

OUDERDOMSCLAUSULE
Omdat de woning meer dan 20 jaar oud is, wordt een ouderdomsclausule opgenomen in de koopakte. De technische eisen aan dit pand liggen hierdoor aanzienlijk lager dan bij recente nieuwbouw. Koper aanvaardt dat afwijkingen ten opzichte van moderne bouweisen niet als tekortkoming kunnen worden aangemerkt en kan zich daar bij latere gebreken niet op beroepen.

VERKOOPDOCUMENTATIE
Deze verkoopinformatie is zorgvuldig samengesteld. Toch zijn wij grotendeels afhankelijk van derden voor de inhoudelijke juistheid. Daarom aanvaarden zowel de verkoper als wij geen enkele aansprakelijkheid voor eventuele onjuistheden in de verstrekte gegevens.

Bedankt voor uw interesse in deze woning! We nodigen u graag uit om een kijkje te komen nemen. Tijdens de bezichtiging laten we u zien hoe het huis er momenteel uitziet, maar we denken ook graag met u mee over de mogelijkheden. Misschien ziet u het net even anders, en dat begrijpen we maar al te goed. We staan open voor uw ideeën en bespreken graag hoe u de ruimtes naar uw eigen smaak en wensen kunt aanpassen. Vaak zijn er verrassend eenvoudige manieren om een woning helemaal naar uw hand te zetten.
Een bouwtechnische keuring is nimmer een probleem.

Heeft u vragen of wilt u een afspraak maken? Neem dan gerust contact met ons op, telefonisch of via e-mail. We helpen u graag verder.

Kenmerken

Overdracht

Vraagprijs
€ 699.000 k.k.
Vraagprijs per m²
€ 4.957
Aangeboden sinds
1 december 2025
Status
Beschikbaar
Aanvaarding
In overleg

Bouw

Soort woning
Woonhuis
Bouwjaar
1967
Soort dak
Zadeldak

Oppervlakten en inhoud

Oppervlakte wonen
141 m²
Oppervlakte gebouwgebonden buitenruimte
5 m²
Oppervlakte externe bergruimte
37 m²
Perceel
389 m²
Inhoud
524 m³

Indeling

Aantal kamers
5
Aantal slaapkamers
4
Aantal badkamers
1
Badkamervoorzieningen
Toilet, wastafelmeubel en inloopdouche
Aantal woonlagen
3
Gelegen op
0

Energie

Energielabel
C
Isolatie
Dakisolatie, muurisolatie, grotendeels dubbelglas en hr glas
Warm water
Cv-ketel
Cv-ketel
Combiketel

Buitenruimte

Ligging
Aan rustige weg, in woonwijk en in bosrijke omgeving
Tuin
Achtertuin
Achtertuin
210 m² gelegen op het zuidwesten met achterom

Garage

Soort garage
Vrijstaand steen
Capaciteit
2
Voorzieningen
Verwarming, elektra, water en elektrische deur

Media

Locatie

Meer informatie?